Omschrijving
Woning verkocht: Westerloane 14 in BroeksterwÂld
Ben jij op zoek naar een energiezuinige, moderne 2-onder-1-kapwoning in het gezellige dorp Broeksterwâld?
Op een mooie locatie, gelegen in de nieuwbouwwijk van Broeksterwâld, staat deze energiezuinige, instapklare 2-onder-1-kapwoning op een perceel van 355 m2. Op de begane grond beschikt de woning over een L-vormige woonkamer en een moderne halfopen keuken met deuren naar de achtertuin. Verder vind je op de begane grond de bijkeuken, de badkamer, voorzien van inloopdouche en wastafel, en de 1e slaapkamer. Dit maakt dat de woning geschikt is om levensloopbestendig te wonen. Op de verdieping bevinden zich nog eens 2 slaapkamers en een apart toilet. Buiten heb je een eigen oprit, een groene voortuin en een fijne achtertuin met achterom, voorzien van berging met overkapping. De achtertuin is gelegen op het noordoosten en biedt een heerlijke plek om te genieten van het buitenleven. De woning is volledig geïsoleerd, geheel voorzien van vloerverwarming, voorzien van kunststof kozijnen met HR++ beglazing, een warmtepomp en 6 zonnepanelen en voldoet daarmee aan energielabel A+++. Kortom, een instapklare, energiezuinige 2-onder-1-kapwoning, perfect voor meerdere doelgroepen.
– traditioneel in 2022 gebouwde woning
– kunststof kozijnen met HR++ beglazing, warmtepomp en 6 zonnepanelen (energielabel A+++)
– achtertuin met houten berging en overkapping
– slaap en badkamer op de begane grond
Broeksterwâld is een authentiek en actief plattelandsdorp. Het beschikt over meerdere voorzieningen zoals basisschool, dorpshuis, sportveld, diverse andere kleinere voorzieningen en relatief veel zelfstandig ondernemers. Voor de supermarkt ben je dichtbij Damwâld, waar zich een winkelcentrum bevindt voor de dagelijkse boodschappen. Met een paar minuten ben je in het prachtige “Bûtenfjild”, waar je heerlijk kunt fietsen en wandelen. Voor de regionale voorzieningen is men gericht op Dokkum en Leeuwarden (resp. op 8 en 20 km. afstand).
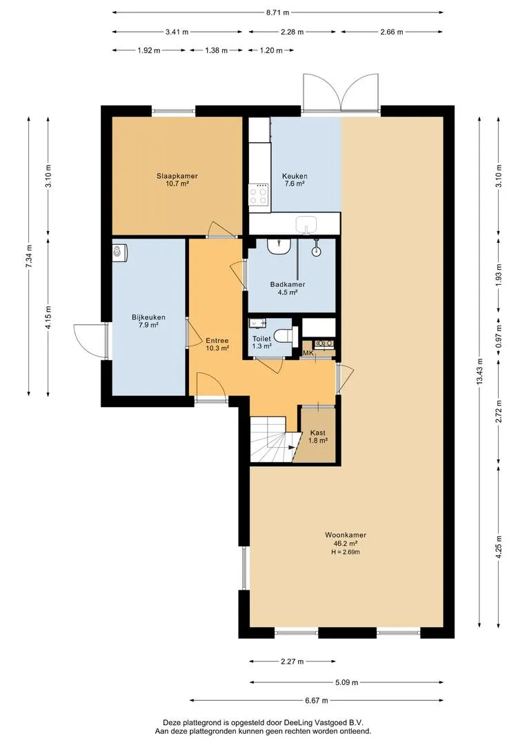
INDELING (zie ook de bijgevoegde plattegronden)
Begane grond:
– entree/hal met meterkast, trapkast en trapopgang naar de verdieping
– aparte toiletruimte met wandcloset en fonteintje
– L-vormige woonkamer van circa 46,2 m2
– luxe halfopen keuken (2022) va. circa 7,6 m2 met tuindeuren, voorzien van inductiekookplaat, afzuigkap, combi-oven, koelkast, vriezer en vaatwasser
– bijkeuken van circa 7,9 m2 met witgoedaansluiting, warmtepompinstallatie en deur naar de tuin
– moderne, nette badkamer van circa 4,5 m2 voorzien van inloopdouche en wastafel
– slaapkamer 1 van circa 10,7 m2 aan de achterzijde met uitzicht op de achtertuin
Verdieping:
– overloop met vide en vlizotrap naar de vliering
– slaapkamer 2 van circa 19,3 m2 aan de voorzijde met dakkapel
– slaapkamer 3 van circa 8 m2 aan de achterzijde met dakraam
– bergruimte/inloopkast van circa 3,7 m2
– aparte toiletruimte met wandcloset en fonteintje
Vliering:
– vanaf de overloop, middels een vlizotrap, bereikbare ruime bergzolder
Tuin:
– achtertuin gelegen op het noordoosten voorzien van een gazon en bestrating
– vrijstaande houten berging van circa 7,9 m2 met overkapping van circa 9,6 m2
– parkeergelegenheid voor meerdere auto’s op eigen oprit
Algemeen:
– meterkast voorzien 13 groepen met krachtstroom
– voorzien van 6 zonnepanelen (370 WP)
– energielabel A+++
– Verwarming en warm water middels een warmtepomp Nibe
Aan deze presentatie kunnen geen rechten worden ontleend.
Toelichtingsclausule BBMI. De Meetinstructie is gebaseerd op de BBMI. De Meetinstructie is bedoeld om een meer eenduidige manier van meten toe te passen voor het geven van een indicatie van de gebruiksoppervlakte. De Meetinstructie sluit verschillen in meetuitkomsten niet volledig uit, door bijvoorbeeld interpretatieverschillen, afrondingen of beperkingen bij het uitvoeren van de meting.











































