Omschrijving
Woning beschikbaar: Valckeniersweg 36 in Haulerwijk
Prachtige uitgebouwde twee-onder-een-kapwoning met 3 slaapkamers, voorzien van energielabel A!
Op een mooie locatie, in een kindvriendelijke woonomgeving, staat deze gemoderniseerde en instapklare twee-onder-een-kapwoning op een perceel van 272 m². Deze goed onderhouden woning is ideaal voor gezinnen, want je beschikt hier over maar liefst 3 nette slaapkamers en een toilet op de verdieping. Op de begane grond heb je een gezellige woonkamer met lichtkoepel en tuindeuren. De keuken bevindt zich aan de voorzijde van de woning en beschikt over een groot kookeiland en een kastenwand. Verder vind je nog een moderne badkamer met inloopdouche en bubbelbad en een bijkeuken die ook toegang biedt tot de achtertuin. Buiten heb je een keurige achtertuin met overkapping en 2 bergingen. Hier heb je een heerlijk plekje om te genieten van het buitenleven. De woning is op de begane grond voorzien van vloerverwarming en de woning beschikt over energielabel A! Kortom, een comfortabele woning waar je zo in kunt met in de directe omgeving diverse voorzieningen.
– volledig gemoderniseerde en uitgebouwde 2/1-kapwoning
– volledig geïsoleerd en voorzien van energielabel A!
– parkeergelegenheid voor meerdere auto’s op eigen oprit
Haulerwijk is een gezellig en groen dorp in de gemeente Ooststellingwerf, met alle dagelijkse voorzieningen zoals winkels, scholen en sportfaciliteiten. Het ligt in een prachtige omgeving met bos, heide en het Haulerwijkster Diep vlakbij. Ook de natuurgebieden rond Bakkeveen en het Mandefjild zijn eenvoudig bereikbaar. Een fijne plek voor wie rust en natuur zoekt, maar toch alles dichtbij wil hebben.
Indeling van de woning (zie ook de bijgevoegde plattegronden):
Begane grond (voorzien van vloerverwarming):
– entree/hal met meterkast
– toiletruimte met wandcloset en fonteintje
– afgesloten trapopgang naar de verdieping
– aan de voorzijde een moderne keuken met kookeiland, kastenwand en een provisiekast
– keukeninrichting (2021) voorzien van een inductiekookplaat met ingebouwde afzuiging, vaatwasser, close-in boiler, koelkast, vriezer, koffiemachine en een oven
– tuingerichte en sfeervolle woonkamer van circa 30 m² met houtkachel, tuindeuren en een dakkoepel
– moderne badkamer van circa 7 m² met inloopdouche, bubbelbad en dubbele wastafel met meubel
– bijkeuken met keukenblok, witgoedaansluitingen en cv-aansluitingen
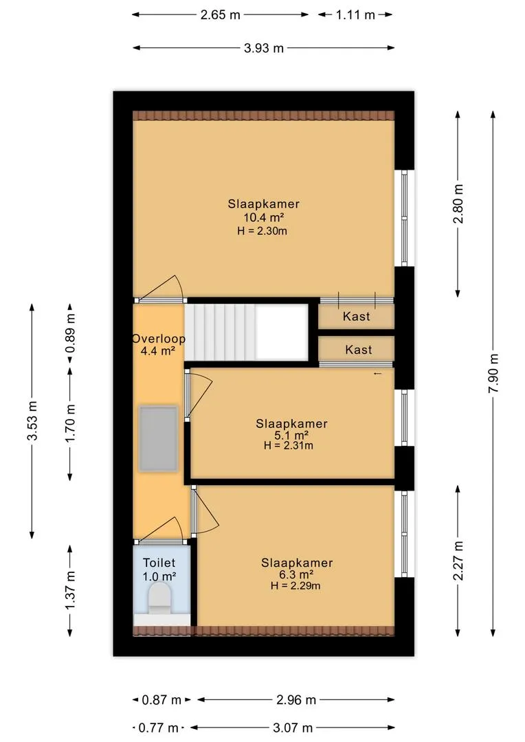
Verdieping:
– overloop met luik naar de vliering
– toiletruimte met wandcloset
– slaapkamer 1 (voorzijde) van circa 6 m2
– slaapkamer 2 van circa 5 m² met vaste kast
– slaapkamer 3 (achterzijde) van circa 10 m2
Vliering:
– bergzolder
Buiten:
– onderhoudsarme voortuin/oprit, met voldoende parkeermogelijkheid voor meerdere voertuigen
– keurig aangelegde achtertuin met gazon, sierbeplanting en bestrating, 2 bergingen en 2 overkappingen
– vrijstaande houten berging van circa 11 m², voorzien van een betonnen vloer, elektra, dubbel glas, gevel- en dakisolatie
Algemeen
– verwarming en warm water middels een combiketel van Remeha (2019) en gedeeltelijke vloerverwarming
– meterkast voorzien van 9 groepen met aardlekschakelaars en een kookgroep
– bouwjaar circa 1955
Aan deze presentatie kunnen geen rechten worden ontleend.
Toelichtingsclausule BBMI. De meetinstructie is gebaseerd op de BBMI. De meetinstructie is bedoeld om een meer eenduidige manier van meten toe te passen voor het geven van een indicatie van de gebruiksoppervlakte. De meetinstructie sluit verschillen in meetuitkomsten niet volledig uit, door bijvoorbeeld interpretatieverschillen, afrondingen of beperkingen bij het uitvoeren van de meting.






















































