Omschrijving
Woning verkocht: Ruysdaelstraat 67 in Leeuwarden
Superleuke tussenwoning met 4 slaapkamers is gelegen in “Huizum-West”, op loop- en fietsafstand van het stadscentrum en het station.
Op een mooie locatie, in het gewilde “Huizum-West”, staat deze karakteristieke jaren 30 woning op een perceel van 112 m² met achterom. De woonkamer betreft een doorzonkamer, welke voorzien is van een erker. Daarnaast heb je een nette dichte keuken met diverse inbouwapparatuur en een bijkeuken met toilet aan de achterzijde. Op de verdieping zijn 3 slaapkamers en een doucheruimte met wastafelmeubel. Aan de achterzijde bevindt zich een dakterras, gelegen op het zonnige zuiden, welke bereikbaar is via de overloop. Op de zolderverdieping bevindt zich nog een slaapkamer en een grote berging. Aan de achterzijde heb je een fijne tuin, gelegen op het zuiden en met achterom. Je kunt hier genieten van voldoende privacy en het zonnetje. Kortom, een keurige woning, gelegen op een mooie locatie, nabij het stadscentrum en met de auto ben je binnen enkele autominuten op de rondweg en uitvalswegen van Leeuwarden.
– keurige jaren 30 tussenwoning
– in totaal 4 slaapkamers op de verdieping en zolder
– dichte keuken met diverse inbouwapparatuur
– fijne achtertuin en dakterras gelegen op het zonnige zuiden
– gelegen in een gewilde woonomgeving op loop-/fietsafstand van de binnenstad
Ruysdaelstraat 67 ligt in een rustige en groene woonwijk in Leeuwarden, met het NS-station op korte afstand en alle overige voorzieningen binnen handbereik. In de directe omgeving bevinden zich een speeltuin, een voetbalveldje en diverse (winkel)voorzieningen aan winkelstraat De Schrans. Ook het Frisius MC, scholen en andere faciliteiten zijn op loop- of fietsafstand bereikbaar. Het stadscentrum is eveneens snel te bereiken. De wijk is kindvriendelijk, kent weinig verkeer en biedt volop parkeergelegenheid. Dankzij de gunstige ligging nabij uitvalswegen bent u bovendien snel onderweg richting Drachten of Heerenveen.
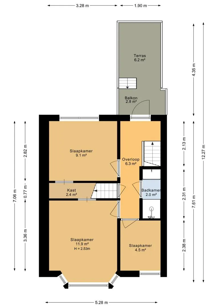
INDELING (zie ook de bijgevoegde plattegronden)
Begane grond:
– hal/entree met trapopgang naar de verdieping, trapkast en meterkast
– sfeervolle woonkamer voorzien van erker en grote ramen
– afgesloten keukenruimte met een nette keukeninrichting en diverse inbouwapparatuur
– keuken is voorzien van een gaskookplaat met afzuigkap, oven en vaatwasser
– bijkeuken voorzien van witgoed-aansluitingen, cv-opstelling en toegangsdeur naar de achtertuin
– toiletruimte met staand toilet en fonteintje
Verdieping:
– ruime overloop met vaste trap naar de zolderverdieping, vaste kasten en deur naar het dakterras
– slaapkamer 1 aan de achterzijde van circa 9 m² voorzien van vaste kast
– slaapkamer 2 aan de voorzijde van circa 12 m² voorzien van erker en vaste kast
– slaapkamer 3 aan de voorzijde van circa 4,5 m2 mogelijkheid om hier een badkamer te realiseren
– eenvoudige doucheruimte voorzien van wastafelmeubel
– dakterras bereikbaar via de overloop gelegen op het zonnige zuiden
Zolderverdieping:
– middels een vaste trap bereikbare zolderverdieping met hoge nok
– overloop met bergruimte en voorzien van een dakraam
– slaapkamer 4 van circa 8 m2 met dakraam
Tuin:
– nette voortuin met sierbeplanting en bestrating
– achtertuin voorzien van sierbestrating- en beplanting met achterom via een afgesloten steeg, gelegen op het zuiden
– stenen fietsen/tuinberging
Algemeen:
– bouwjaar circa 1934
– energielabel C, geldig tot 2035
– voorzien van 7 zonnepanelen (410 WP per paneel)
– verwarming en warm water middels een cv-combiketel van het merk Intergas
Aan deze presentatie kunnen geen rechten worden ontleend.
Toelichtingsclausule BBMI. De Meetinstructie is gebaseerd op de BBMI. De Meetinstructie is bedoeld om een meer eenduidige manier van meten toe te passen voor het geven van een indicatie van de gebruiksoppervlakte. De Meetinstructie sluit verschillen in meetuitkomsten niet volledig uit, door bijvoorbeeld interpretatieverschillen, afrondingen of beperkingen bij het uitvoeren van de meting.









































