Omschrijving
Woning beschikbaar: Reigershof 20 in Kollum
Op zoek naar een ruime hoekwoning met maar liefst 4 slaapkamers, eigen oprit en instapklaar? Dan is deze woning precies wat je zoekt!
Op een rustige locatie, in een kindvriendelijke woonomgeving, staat deze mooie hoekwoning op een ruim perceel van 305 m². De woning beschikt op de begane grond over een lichte doorzonwoonkamer met aansluitend het eetgedeelte en een halfopen keuken, voorzien van diverse inbouwapparatuur. Als je door de keuken loopt, kom je terecht in de ruime bijkeuken, die is voorzien van een wasmachineaansluiting en deur naar de achtertuin. Op de verdiepingen bevinden zich in totaal 4 ruime slaapkamers en een moderne badkamer. Buiten heb je een fijne achtertuin met achterom, gelegen op het noordwesten, voorzien van een leuke overkapping met aangebouwde berging en een eigen oprit met parkeergelegenheid voor meerdere auto’s. Tegenover de woning ligt een speelveldje. Basisscholen en het voortgezet onderwijs zijn op loopafstand. De woning is goed geïsoleerd en voorzien van HR(++) beglazing. Kortom, een instapklare woning welke zeker een bezichtiging waard is!
– prachtige hoekwoning met eigen oprit op een perceel van 305 m²
– 4 ruime slaapkamers en een moderne badkamer op de verdiepingen
– fijne achtertuin met achterom, gelegen op het noordwesten, voorzien van een gezellige overkapping met aangebouwde berging
– Voorzien van energielabel C, voorzien van muur- en dakisolatie en deels HR++ beglazing
Kollum is een gezellig dorp met alle benodigde voorzieningen. Zoals onder andere scholen, winkels, gezondheidscentra en een treinstation op 15 minuten fietsafstand. Deze heeft een rechtstreekse verbinding met Leeuwarden en Groningen. Rondom Kollum bevinden zich mooie fietspaden in het groen.
Indeling van de woning (zie ook de bijgevoegde plattegronden):
Begane grond:
– entree/hal met meterkast, trapkast en trapopgang naar de verdieping
– toiletruimte met fonteintje
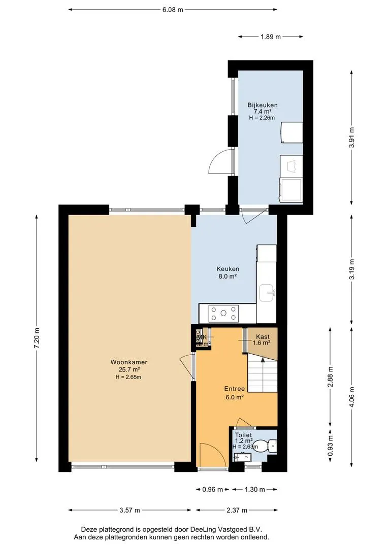
– lichte doorzonwoonkamer van circa 26 m² met aansluitend het eetgedeelte
– moderne, halfopen keuken voorzien van gaskookplaat, afzuigkap, oven en vaatwasser
– bijkeuken van circa 7 m² voorzien van witgoedaansluiting en toegangsdeur naar de achtertuin
Verdieping:
– overloop met vaste trap naar de zolderverdieping
– slaapkamer 1 aan de voorzijde van circa 11 m²
– slaapkamer 2 aan de achterzijde van circa 15 m²
– slaapkamer 3 aan de achterzijde van circa 7 m²
– moderne badkamer (2014) met douche, wandcloset en dubbel wastafelmeubel
Zolderverdieping:
– overloop met bergruimte achter het knieschot
– aparte bergruimte inclusief cv opstelling
– slaapkamer 4 van circa 12 m² met dakraam
Buitenom:
– nette voortuin met sierbestrating, beplanting en eigen oprit met parkeergelegenheid voor meerdere auto’s
– verzorgde achtertuin, gelegen op het noordwesten, met bestrating, sierbeplanting en een gazon
– houten overkapping met aangebouwde houten berging
Algemeen:
– voorzien van energielabel C
– verwarming en warm water middels een cv-combiketel van Intergas (2021)
– betonvloeren
– anti-verhuurbeding van toepassing
Aan deze presentatie kunnen geen rechten worden ontleend.
Toelichtingsclausule BBMI. De Meetinstructie is gebaseerd op de BBMI. De Meetinstructie is bedoeld om een meer eenduidige manier van meten toe te passen voor het geven van een indicatie van de gebruiksoppervlakte. De Meetinstructie sluit verschillen in meetuitkomsten niet volledig uit, door bijvoorbeeld interpretatieverschillen, afrondingen of beperkingen bij het uitvoeren van de meting.












































