Omschrijving
Woning verkocht: Noordvlietstraat 20 in Leeuwarden
Starters opgelet! Opzoek naar een sfeervolle, keurig onderhouden woning nabij de binnenstad van Leeuwarden? Dan is dit je kans!
Het betreft een instapklare woning, ten oosten van de binnenstad. De woning beschikt op de begane grond over een knusse lichte woonkamer met aansluitend het eetgedeelte en de fraaie keuken voorzien van diverse inbouwapparatuur. Via de keuken kom je in de 1e badkamer, voorzien van wandcloset, wastafel, inloopdouche en witgoedaansluiting. Op de verdieping heb je 1 ruime slaapkamer met dakkapel en een 2e badkamer met wandcloset, inloopdouche en wastafelmeubel. In de voortuin bevindt zich een houten vrijstaande berging welke ideaal is voor het stallen van fietsen. Door de muur- en dakisolatie en HR-beglazing voldoet de woning aan energielabel C. De woning is gelegen in een rustige wijk op loopafstand van het centrum, Kortom: deze woning biedt volop mogelijkheden om er jouw droomhuis van te maken.
– knusse instapklare tussenwoning met karakteristieke details
– nette, gemoderniseerde keuken (2021) voorzien van diverse inbouwapparatuur
– gelegen in een populaire woonomgeving op loop/fiets afstand van de binnenstad
De straat is rustig gelegen, terwijl je toch dichtbij allerlei voorzieningen bent. Binnen enkele minuten lopen vind je een speeltuin, basisscholen, winkels, sportfaciliteiten en een kinderopvang. Het centrale station van Leeuwarden, met snelle treinverbindingen naar Groningen en andere steden, ligt op slechts 5 minuten fietsen. Het gezellige stadscentrum met zijn vele voorzieningen is eveneens met 5 minuten fietsen te bereiken.
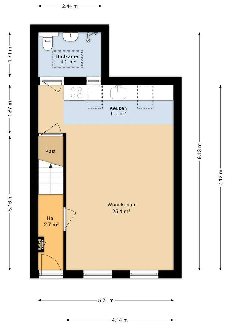
Indeling: (Zie ook bijgevoegd plattegronden)
Begane grond:
– entree/ hal met meterkast en trapopgang naar de verdieping
– knusse woonkamer van circa 31 m2 met aansluitend het eetgedeelte, voorraad kast onder de trap en de keuken
– keuken (2021) voorzien van gaskookplaat, afzuigkap, combi-oven, koel-vriescombinatie en vaatwasser
– 1e badkamer met lichtkoepel voorzien van inloopdouche, wastafel, wandcloset en witgoedaansluiting
Verdieping:
– overloop met cv-opstelling en wat opslagruimte
– ruime slaapkamer aan de voorzijde van circa 14 m2 met kunststof dakkapel en bergruimte achter het knieschot
– nette, complete badkamer van circa 5 m2 voorzien van wandcloset, inloopdouche en wastafelmeubel
Buiten:
– voortuin van circa 5 meter diep gelegen op het zonnige westen volop mogelijkheden om heerlijk buiten te zitten
– vrijstaande houten berging van circa 2,5 m2, geschikt om fietsen te stallen
Algemeen:
– verwarming middels cv-ketel van het merk Nefit Trendline hrc (2014)
– meterkast voorzien van 5 automaten 2x aardlek en hoofdschakelaar
– voorzien van energielabel C
– ideale ligging dichtbij het centrum van Leeuwarden
Aan deze presentatie kunnen geen rechten worden ontleend.
Toelichtingsclausule BBMI. De Meetinstructie is gebaseerd op de BBMI. De Meetinstructie is bedoeld om een meer eenduidige manier van meten toe te passen voor het geven van een indicatie van de gebruiksoppervlakte. De Meetinstructie sluit verschillen in meetuitkomsten niet volledig uit, door bijvoorbeeld interpretatieverschillen, afrondingen of beperkingen bij het uitvoeren van de meting.






































