Omschrijving
Woning verkocht: Meerkoetstraat 44 in Kollum
Ruime tussenwoning met vrijstaande berging en 4 slaapkamers in het bruisende dorp Kollum!
Op een mooie locatie, in een kindvriendelijke woonomgeving, staat deze leuke eengezinswoning op een perceel van 183 m². De woning beschikt op de begane grond over een ruime, lichte woonkamer, een aparte keukenruimte met nette keukenopstelling en een bijkeuken aan de achterzijde. Op de verdiepingen bevinden zich 4 ruime slaapkamers en een nette badkamer. Buiten ben je voorzien van een onderhoudsarme voor- en achtertuin met achterom en een schuur. De achterzijde is gelegen op het zuidoosten, waar je een heerlijk plekje hebt om te genieten van het buitenleven.
– tussenwoning met aangebouwde bijkeuken
– onlangs nieuwe houten kozijnen geplaatst met HR++-beglazing
– 4 ruime slaapkamers en complete badkamer op de verdiepingen
– onderhoudsarme achtertuin met achterom en schuur, gelegen op het zuidoosten
In het dorp Kollum zijn diverse soorten winkels, supermarkten, basisscholen en sportverenigingen aanwezig. Het totaal aantal inwoners is circa 6000. Vanuit het dorp is er een uitstekende busverbinding naar Dokkum en Leeuwarden. Het dorp Buitenpost bevindt zich op 5 km vanwaar de trein vertrekt naar Groningen en Leeuwarden. De woning bevindt zich in het centrum van het dorp, waardoor winkels en horeca op loopafstand te vinden zijn.
Indeling van de woning (zie ook de bijgevoegde plattegronden):
Begane grond
– entree/hal met meterkast, trapkast en trapopgang naar de verdieping
– toiletruimte
– ruime “doorzon” woonkamer met aansluitend het eetgedeelte (26 m2)
– gesloten keukenruimte voorzien van een nette, doch eenvoudige keukenopstelling
– aangebouwde bijkeuken met witgoedaansluiting en een deur naar de achtertuin
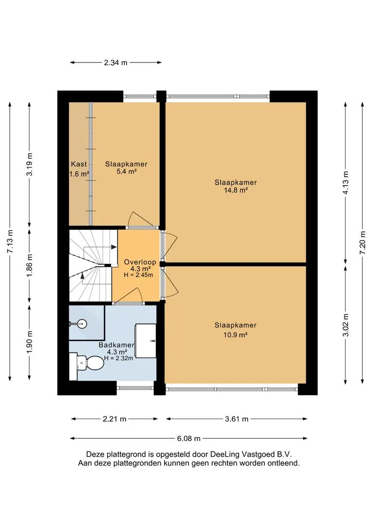
Verdieping
– overloop met vaste trap naar zolderverdieping
– slaapkamer 1 aan de voorzijde van circa 11 m²
– slaapkamer 2 aan de achterzijde van circa 15 m²
– slaapkamer 3 aan de achterzijde van circa 5 m² met een inbouwkast
– complete badkamer voorzien van toilet, douche en een wastafelmeubel
Zolderverdieping
– overloop met bergruimte achter het knieschot
– Berging met cv-opstelling
– 4e slaapkamer 4 van circa 9,5 m² met dakraam
Buitenom:
– onderhoudsarme voortuin met sierbestratingen en grind
– onderhoudsarme achtertuin van circa 13 meter diep met achterom, gelegen op het zuidoosten
– vrijstaande houten berging van circa 7 m², voorzien van elektra
Algemeen:
– woning is voorzien van energielabel C
– meterkast voorzien van 5 groepen
– verwarming en warm water middels een huurketel (€ 35,- per maand) van Intergas (2025)
Aan deze presentatie kunnen geen rechten worden ontleend.
Toelichtingsclausule BBMI. De meetinstructie is gebaseerd op de BBMI. De meetinstructie is bedoeld om een meer eenduidige manier van meten toe te passen voor het geven van een indicatie van de gebruiksoppervlakte. De meetinstructie sluit verschillen in meetuitkomsten niet volledig uit, door bijvoorbeeld interpretatieverschillen, afrondingen of beperkingen bij het uitvoeren van de meting.











































