Omschrijving
Woning beschikbaar: Kerkstraat 12 in Munnekezijl
Superleuke tussenwoning met 4 slaapkamers in het rustige Munnekezijl.
Op een mooie locatie, in een kindvriendelijke woonomgeving, staat deze leuke eengezinswoning op een perceel van 151 m². De woning beschikt op de begane grond over een ruime, lichte woonkamer, een open keukenruimte met moderne keukenopstelling en een berging/bijkeuken aan de achterzijde. Op de verdiepingen bevinden zich 4 ruime slaapkamers en een moderne badkamer. Buiten ben je voorzien van een onderhoudsarme achtertuin, met achterom. De achterzijde is gelegen op het noordoosten, waar je een heerlijk plekje hebt om te genieten van het buitenleven.
– tussenwoning met aangebouwde berging/bijkeuken
– 4 ruime slaapkamers en moderne badkamer op de verdiepingen
– onderhoudsarme achtertuin met achterom
Munnekezijl is een klein, landelijk dorp in de gemeente Noardeast-Fryslân in het noordoosten van Friesland, vlakbij de grens met Groningen. Het dorp telt circa 470 inwoners. Het dorp biedt rust en natuur, ideaal voor wandelen, fietsen en watersport in de omgeving van het Lauwersmeer en door het waterrijke landschap. Munnekezijl is goed bereikbaar; voorzieningen zijn in omliggende dorpen te vinden, zoals winkels, scholen en horeca te vinden zijn.
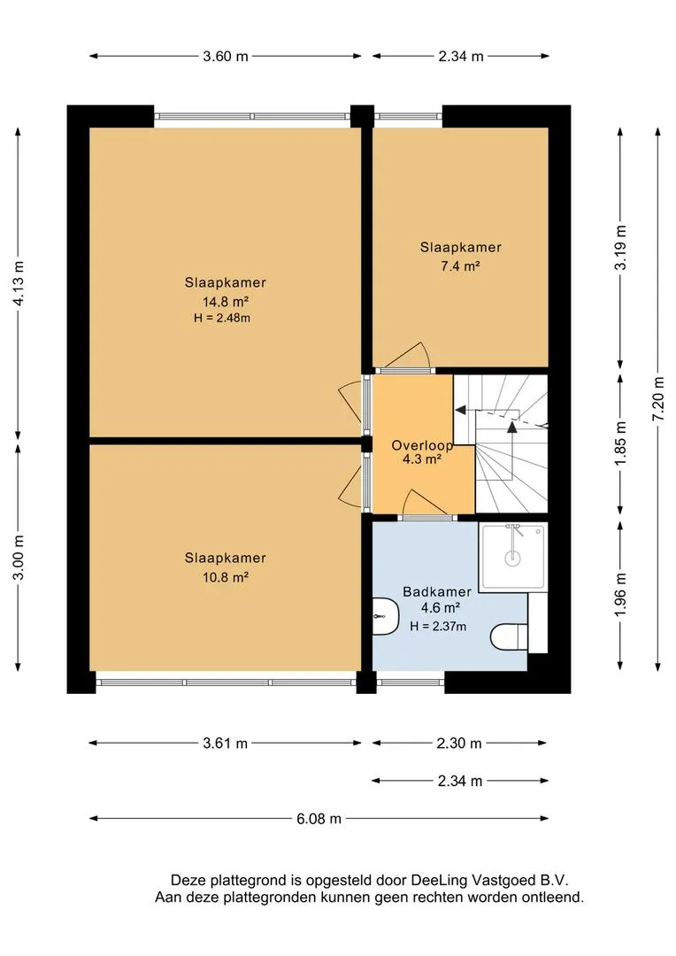
Indeling van de woning (zie ook de bijgevoegde plattegronden):
Begane grond
– entree/hal met meterkast, trapkast en trapopgang naar de verdieping
– toiletruimte met wandcloset
– “doorzon” woonkamer met aansluitend het eetgedeelte
– open keukenruimte voorzien van een moderne keukenopstelling (2023)
– aangebouwde bijkeuken met witgoedaansluiting en een deur naar de achtertuin
Verdieping
– overloop met vaste trap naar zolderverdieping
– slaapkamer 1 aan de voorzijde van circa 11 m2
– slaapkamer 2 aan de achterzijde van circa 15 m2
– slaapkamer 3 aan de achterzijde van circa 7 m2
– moderne badkamer (2025) voorzien van vloerverwarming, design radiator, wandcloset, douche en wastafelmeubel
Zolder
– middels vaste trap te bereiken zolderverdieping
– overloop
– bergruimte met cv-opstelling
– slaapkamer 4 van circa 11 m² met dakraam
Buitenom
– verzorgde voortuin met gazon, sierbeplanting en -bestrating
– onderhoudsarme achtertuin van circa 9 meter diep met achterom, gelegen op het noordoosten
Algemeen
– woning is voorzien van energielabel C
– meterkast voorzien van 8 groepen met 2 aardlekschakelaars
– verwarming en warm water middels een Remeha HR-combiketel (2016)
– deels dakisolatie, gevelisolatie en deels dubbel glas
Ben je geïnteresseerd in deze woning? Bel dan direct voor een afspraak.
Aan deze presentatie kunnen geen rechten worden ontleend.
Toelichtingsclausule BBMI. De meetinstructie is gebaseerd op de BBMI. De meetinstructie is bedoeld om een meer eenduidige manier van meten toe te passen voor het geven van een indicatie van de gebruiksoppervlakte. De meetinstructie sluit verschillen in meetuitkomsten niet volledig uit, door bijvoorbeeld interpretatieverschillen, afrondingen of beperkingen bij het uitvoeren van de meting.









































