Omschrijving
Woning verhuurd: Johannes Tabesstrjitte 4 in BroeksterwÂld
INMIDDELS ZIJN ALLE 4 WONINGEN IN OPTIE
***De bouw van deze 4 woningen is reeds gestart en zullen naar verwachting eind 2025 worden opgeleverd***
Aan de Johannes Tabesstrjitte worden deze 4 energiezuinige, complete vrijstaande woningen gerealiseerd. Met een afmeting van ruim 8,5 bij 11 meter en een gebruiksoppervlak van circa 80 m² (vliering niet meegerekend) beschik je over een ruime woning met veel comfort. De woningen hebben een luxe uitstraling met bruinachtige gevelstenen, antracietgrijze accenten en witgrijze voegen. Ook worden ze afgewerkt met een stalen felsbanen dak, kunststof kozijnen en 8 zonnepanelen. Het luxe opleveringsniveau maakt het geheel ideaal voor nu en de toekomst. De woningen worden opgeleverd met een volledig aangelegde tuin, eigen oprit en houten berging. Aan de binnenzijde worden de woningen behangklaar gemaakt, met een volledig afgewerkte badkamer, moderne keuken en aangename vloerverwarming welke ook kan koelen, een aangename toevoeging op de warme dagen. De woningen zijn levensloopbestendig, met de slaapkamers en de badkamer op de begane grond. Aan de achterzijde bevindt zich een mooie ruime aangebouwde veranda, wat zorgt voor een heerlijk plekje in de zon om te genieten van het buitenleven.
Kortom, een fijne huurwoning om jaren in alle rust, gemak en vrijheid te wonen zonder zorgen over onderhoud en alle dagelijkse voorzieningen binnen handbereik.
Mocht u geïnteresseerd zijn in één van deze woningen dan verzoeken wij u ons een mail met motivatie te sturen naar ons kantoor (via het contactformulier of via de mail info@elfstedenmakelaars.nl)
Levensloopbestendige woningen;
– bad- en 2 slaapkamers op de begane grond
– ruime kavels vanaf bijna 600 m2 tot ruim 400 m2
– eigen berging
– complete keuken met luxe inbouwapparatuur
– energiezuinige, gasloze woningen mét warmtepomp
– de wanden zijn behang-/schilderklaar
Broeksterwâld, een rustig dorp met basisschool in het dorp. Voor de supermarkt ben je dichtbij Damwâld, waar zich een winkelcentrum bevindt voor de dagelijkse boodschappen. Met een paar minuten ben je op het prachtige “Bûtenfjild”, waar je heerlijk kunt fietsen en wandelen.
Voorwaarden huur:
– betreft een huurperiode van minimaal 1 jaar
– uitgesloten voor studenten/natuurlijke personen onder bewind/BKR-notering
– het kunnen tonen van een goede verhuurdersverklaring als er eerder gehuurd is
– borgsom is 1 keer de maandhuur
– huurprijs € 1500,- per maand exclusief energiekosten
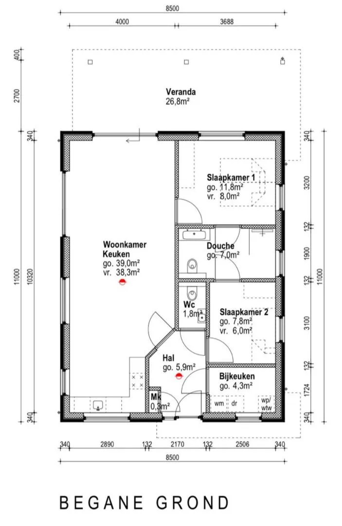
Indeling (zie ook de bijgevoegde plattegronden)
Begane grond (voorzien van vloerverwarming):
– entree/hal met meterkast
– toiletruimte met wandcloset en fonteintje
– open keukenruimte voorzien van diverse inbouwapparatuur
– woonkamer van circa 39 m2 met schuifpui naar de veranda
– bijkeuken voorzien van witgoedaansluiting en warmtepomp
– slaapkamer 1 aan de achterzijde van de woning van circa 12 m2
– slaapkamer 2 aan de zijkant van de woning van circa 8 m2
– badkamer van circa 7 m2 met inloopdouche, toilet en wastafelmeubel
Vliering:
– bergzolder bereikbaar middels een vlizotrap
Buiten:
– royale aangebouwde veranda van circa 27 m2
– volledig aangelegde tuin rondom de woning
– achtertuin gelegen op het westen
– houten vrijstaande berging van circa 6 m2
– voorzien van 2 eigen parkeervakken en een bestrate oprit
Algemeen:
– duurzame woning met 8 zonnepanelen
– warmtepomp (lucht/water)
– koelen van de woning gaat middels vloerverwarming, een aangename toevoeging op de warme dagen
– vloerverwarming gaat via de warmtepomp
– mocht u geïnteresseerd zijn in deze woning dan verzoeken wij u ons een mail met motivatie te sturen naar info@elfstedenmakelaars.nl
Aan deze presentatie kunnen geen rechten worden ontleend.
Toelichtingsclausule BBMI. De Meetinstructie is gebaseerd op de BBMI. De Meetinstructie is bedoeld om een meer eenduidige manier van meten toe te passen voor het geven van een indicatie van de gebruiksoppervlakte. De Meetinstructie sluit verschillen in meetuitkomsten niet volledig uit, door bijvoorbeeld interpretatieverschillen, afrondingen of beperkingen bij het uitvoeren van de meting.









