Omschrijving
Woning onder bod: Ijsvogel 80 in Dokkum
Ben je op zoek naar een instapklare tussenwoning met een fijne, zonnige achtertuin met vrijstaande berging in Dokkum? Dan ben je hier op het juiste adres!
Op een mooie locatie, aan een rustige straat in het Fûgellân, staat deze keurige tussenwoning. Met maar liefst 114 m² woonoppervlakte biedt deze leuke woning voldoende ruimte voor een gezin. Het beschikt over een ruime woonkamer met aansluitend het eetgedeelte en een nette keukenopstelling op de begane grond. Op de eerste verdieping vind je 3 ruime slaapkamers en een lichte badkamer (2022) met ligbad en douche. Via de vaste trap bereik je de zeer ruime zolder, waar een slaapkamer/studio gerealiseerd is. Deze ruimte is voorzien van een berging en witgoedaansluitingen. Buiten beschikt de woning over een keurig onderhoudsarme achtertuin, bereikbaar via de steeg en gelegen op het zuiden. Of je nu een gezin hebt, een starter bent, of juist wat meer ruimte zoekt – deze woning heeft het allemaal!
Het gezellige stadscentrum van Dokkum is op fietsafstand bereikbaar en in de nabije omgeving zijn diverse voorzieningen aanwezig, zoals scholen en diverse winkels (o.a. cafetaria en een supermarkt). In de directe omgeving is voldoende parkeergelegenheid aanwezig.
– instapklare tussenwoning in rustige woonwijk
– voorzien van HR(+/++) beglazing, gevel- en dakisolatie
– in totaal 4 slaapkamers waarvan 1 op de 2e verdieping
– prettige ligging in kindvriendelijke buurt
– onderhoudsvrije achtertuin in 2021 opnieuw aangelegd met stenen berging
In de stad Dokkum, tevens de noordelijkste stad van Nederland en 1 van de Friese Elfsteden, zijn alle voorzieningen aanwezig. Zo beschikt het gezellige stadje over een breed winkelaanbod en diverse supermarkten, scholen en sportverenigingen. Het totaal aantal inwoners is circa 14.000. Op circa 15 autominuten bevindt zich het prachtige nationaal park “Lauwersmeer”.
Indeling: (zie ook de bijgevoegde plattegronden)
Begane grond:
– entree/hal voorzien van meterkast, trapkast en trapopgang naar de verdieping
– gemoderniseerde toiletruimte (2022) met wandcloset en fonteintje
– royale woonkamer van circa 27 m² met aansluitend het eetgedeelte
– nette keukenopstelling voorzien van inductiekookplaat, koel-vriescombinatie, afzuigkap en magnetron
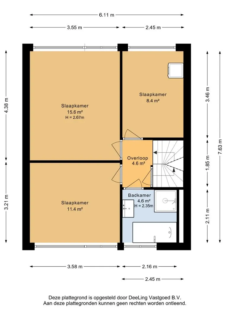
Verdieping:
– overloop met vaste trap naar zolderverdieping
– moderne badkamer (2022) voorzien van een whirlpoolbad, douche en wastafelmeubel, aanpasbare mechanische ventilatie
– slaapkamer 1 aan de voorzijde van circa 11 m²
– slaapkamer 2 aan de achterzijde van circa 15 m²
– slaapkamer 3 aan de achterzijde van circa 8 m²
2e verdieping:
– ruime zolder in 2021 compleet gerenoveerd/geïsoleerd, waar een studio/slaapkamer is gerealiseerd met CV opstelling, witgoedaansluiting en voorzien van 2 dakramen!
Tuin:
– onderhoudsvriendelijke tuin voortuin voorzien van sierbeplanting en bestrating
– circa 10 meter diepe achtertuin opnieuw aangelegd in 2021 met achterom, gelegen op het zuiden
– achtertuin is onderhoudsvrij en voorzien een stenen berging met elektra
Algemeen:
– in 2022 voorzien van nieuwe dakpannen
– verwarming middels een cv-combiketel Intergas (2019)
– meterkast voorzien van 8 groepen en krachtstroom
– voorzien van energielabel C
Is dit dé ideale woning die jij zoekt? Neem dan contact met ons op voor een bezichtiging.
Aan deze presentatie kunnen geen rechten worden ontleend. Toelichtingsclausule NEN2580. De Meetinstructie is gebaseerd op de NEN2580. De Meetinstructie is bedoeld om een meer eenduidige manier van meten toe te passen voor het geven van een indicatie van de gebruiksoppervlakte. De Meetinstructie sluit verschillen in meetuitkomsten niet volledig uit, door bijvoorbeeld interpretatieverschillen, afrondingen of beperkingen bij het uitvoeren van de meting.











































