Omschrijving
Woning onder bod: Iepenlaan 9 in Dokkum
Op zoek naar een ruime hoekwoning met 4 slaapkamers, een royale oprit en garage in de gewilde woonwijk “Jantjeszeepolder”? Dan is dit je kans!
Op een mooie locatie, in een kindvriendelijke woonwijk staat deze ruime woning, perfect geschikt voor gezinnen. Er is een verzorgde woonkamer met halfopen keuken v.v. diverse inbouwapparatuur. De kunststof schuifpui en grote ramen zorgen voor veel lichtinval. Er is sprake van vloerverwarming in de woonkamer, gang en bijkeuken. Via de bijkeuken kom je in de diepe achtertuin en garage. Op de ruime verdieping vind je maar liefst 3 nette slaapkamers en een prachtige badkamer. De zolderverdieping bied nog een extra slaapkamer. Het geheel staat op een perceel van 382 m². De bijzonder diepe achtertuin is gelegen op het oosten, waar je een heerlijk plekje hebt om te genieten van het buitenleven. Aan de achterzijde bevinden zich geen directe buren, waardoor je veel privacy ervaart. De royale oprit en aangebouwde garage bieden voldoende parkeergelegenheid voor meerdere voertuigen. Kortom, een fijne woning voor gezinnen, waar je binnen 5 minuten fietsen in het gezellige stadscentrum van Dokkum bent.
– 4 nette slaapkamers op de verdieping en zolderverdieping
– prachtige badkamer, vernieuwd in 2020
– achtertuin gelegen op het zuidwesten, van maar liefst 23 meter diep
– voldoende parkeergelegenheid op de royale oprit en aangebouwde garage
In de stad Dokkum, tevens de noordelijkste stad van Nederland en 1 van de Friese Elfsteden, zijn alle voorzieningen aanwezig. Zo beschikt het gezellige stadje over een breed winkelaanbod en diverse supermarkten, scholen en sportverenigingen. Het totaal aantal inwoners is circa 13.000. Op circa 15 autominuten bevindt zich het prachtige nationaal park “Lauwersmeer”.
INDELING (zie ook de bijgevoegde plattegronden)
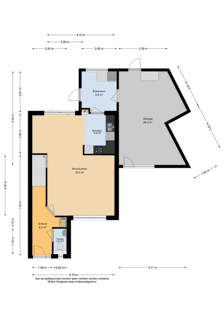
Begane grond
– entree/hal met meterkast en trapopgang naar de verdieping
– toiletruimte met een fonteintje
– royale Z-woonkamer van circa 30 m² met vloerverwarming en schuifpui
– nette halfopen keuken van circa 6 m² met inbouwapparatuur
– keukeninrichting voorzien van een koelkast, vaatwasser, 4-pits gaskookplaat en een afzuigkap
– bijkeuken voorzien van witgoed-aansluitingen, deur naar de garage en toegang tot de achtertuin
Verdieping
– overloop met trapopgang naar de zolderverdieping
– slaapkamer 1 aan de voorzijde van circa 8 m²
– slaapkamer 2 aan de voorzijde van circa 10 m²
– slaapkamer 3 aan de achterzijde van circa 12 m²
– badkamer gemoderniseerd in 2020, voorzien van een wastafelmeubel, inloopdouche en toilet
Zolderverdieping
– royale 4e slaapkamer van circa 22 m²
– opstelplaats van de cv-combiketel
– dak volledig geïsoleerd
Tuin
– achtertuin, gelegen op het zuidwesten, voorzien sierbeplanting, -bestrating en een berging met overkapping
– voor- en zijtuin voorzien van bestrating en gazon
– parkeergelegenheid voor meerdere auto’s op eigen oprit, verder openbaar parkeren
– aangebouwde stenen garage met kanteldeur en loopdeur, voorzien van elektra
– vrijstaande houten berging
Algemeen
– bouwjaar 1980
– voorzien van energielabel C
– meterkast voorzien van 5 automaten en glasvezelaansluiting
Nieuwsgierig om te kijken en voelen of dit jouw droomwoning is? Mail of bel ons voor een bezichtiging!
Aan deze presentatie kunnen geen rechten worden ontleend.
Toelichtingsclausule BBMI. De Meetinstructie is gebaseerd op de BBMI. De Meetinstructie is bedoeld om een meer eenduidige manier van meten toe te passen voor het geven van een indicatie van de gebruiksoppervlakte. De Meetinstructie sluit verschillen in meetuitkomsten niet volledig uit, door bijvoorbeeld interpretatieverschillen, afrondingen of beperkingen bij het uitvoeren van de meting.
















































