Omschrijving
Woning verkocht: Iepenlaan 39 in Dokkum
Ben je op zoek naar een keurige, instapklare woning met 3 slaapkamers en een fijne achtertuin met tuinhuis in Dokkum? Dan ben je hier op het juiste adres!
Op een mooie locatie, aan de rand van de gewilde wijk ‘jantjeszeepolder’ staat deze keurige, zonnige vrijstaande woning op een perceel van 526 m2. De woning beschikt op de begane grond over een lichte L-vormige woonkamer met erker, houtkachel en aansluitend het eetgedeelte en de fraaie open keuken, voorzien van diverse inbouwapparatuur. Vanuit de keuken kun je via de schuifpui in de achtertuin komen. De bijkeuken beschikt over een deur naar de achtertuin, witgoedaansluiting en cv opstelling. Op de verdieping vind je 3 slaapkamers en een complete, nette badkamer, voorzien van dakkapel, tweede toilet, dubbele wastafel en douchehoek. De bergzolder is bereikbaar middels een vlizotrap. Vrijstaande stenen garage van circa 6×3 meter met zolder. Ook is er een keurig aangelegde achtertuin, gelegen op het noorden. De tuin is voorzien van een gazon, sierbeplanting, prachtig tuinhuis met extra berging en een kas. De perfecte tuin om heerlijk te kunnen genieten van de zon en het buitenleven! Buitenom is de woning voorzien van zonwering. De woning is goed geïsoleerd en voorzien van zonnepanelen. Dat zorgt ervoor dat de woning voldoet aan energielabel B, zeer laag energieverbruik, circa 600m3 gas en nagenoeg geen elektriciteitskosten!
– instapklare vrijstaande woning
– in totaal 3 slaapkamers op de verdieping
– keurig aangelegde achtertuin voorzien van een kas, tuinhuis en berging
De Jantjeszeepolder is een rustige en ruim opgezette woonwijk in Dokkum. Het sfeervolle stadscentrum ligt op korte fietsafstand en is gemakkelijk bereikbaar. In de directe omgeving zijn diverse voorzieningen te vinden, zoals basisscholen, een supermarkt en sportfaciliteiten, waaronder de voetbalvelden en een zwembad. Daarnaast is er in de wijk voldoende parkeergelegenheid, wat het wonen hier extra comfortabel maakt. Op steenworp afstand ligt het Tolhuispark waar je heerlijk kunt wandelen, sporten en recreëren.
Indeling: (zie ook de bijgevoegde plattegronden)
Begane grond:
– entree/hal voorzien van meterkast en trapopgang naar de verdieping
– toiletruimte met wandcloset en fonteintje
– sfeervolle L-vormige woonkamer van circa 36 m2 met houtkachel
– aansluitend het eetgedeelte
– open keuken met nette keukenopstelling en schuifpui, voorzien van gaskookplaat, afzuigkap, combi-oven, koelkast en vaatwasser
– ruime bijkeuken met toegang naar de achtertuin, witgoedaansluiting en cv opstelling
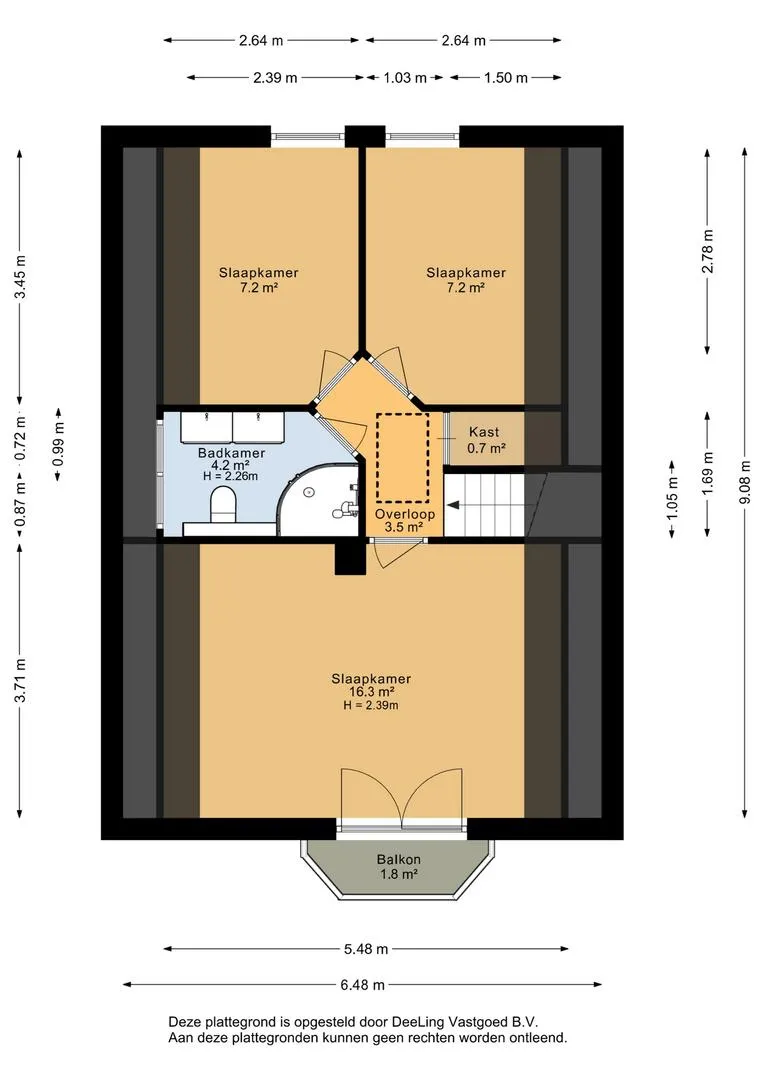
Verdieping:
– overloop met vlizotrap naar de zolderverdieping
– slaapkamer 1 met balkon aan de voorzijde van circa 16 m2
– slaapkamer 2 aan de achterzijde van circa 7 m2
– slaapkamer 3 aan de achterzijde van circa 7 m2
– nette badkamer voorzien van een douchecabine, toilet en dubbel wastafelmeubel
Zolderverdieping:
– bergzolder van circa 9 m2
Tuin:
– verzorgde voortuin voorzien van sierbeplanting en gazon
– circa 16,5 meter diepe achtertuin, gelegen op het noorden, met achterom
– vrijstaande stenen garage en eigen oprit met voldoende parkeergelegenheid voor meerdere voertuigen
– achtertuin is voorzien van sierbeplanting, gazon, tuinkas en houten tuinhuis met berging
Algemeen:
– bouwjaar circa 1987 houtskeletbouw
– verwarming middels een cv-combiketel van Intergas (2023)
– elektra voldoende groepen
– voorzien van maar liefst 19 zonnepanelen
Aan deze presentatie kunnen geen rechten worden ontleend. Toelichtingsclausule NEN2580. De Meetinstructie is gebaseerd op de NEN2580. De Meetinstructie is bedoeld om een meer eenduidige manier van meten toe te passen voor het geven van een indicatie van de gebruiksoppervlakte. De Meetinstructie sluit verschillen in meetuitkomsten niet volledig uit, door bijvoorbeeld interpretatieverschillen, afrondingen of beperkingen bij het uitvoeren van de meting.





















































