Omschrijving
Woning onder bod: I. Jousmastraat 4 in Dokkum
Deze vrijstaande woning is in 2021 grondig gemoderniseerd, voorzien van 4 slaapkamers en fijne achtertuin met overkapping op een prachtige locatie in Dokkum!
In het hart van de gewilde wijk ‘Kooilanden’ staat deze keurige vrijstaande woning. De woning beschikt op de begane grond over een lichte L-vormige woonkamer en aansluitend het eetgedeelte en de fraaie open keuken met kookeiland. Op de verdieping vind je 4 slaapkamers en een complete badkamer. Ook beschikt de woning over een bergzolder. Vanuit de keuken kun je via de deuren in de achtertuin komen. Deze is gelegen op het zuidwesten en voorzien van een gazon, sierbestrating, een trampoline en een royale overkapping met berging. Aan voor- en achterzijde van de woning heb je geen buren, wat voor veel privacy zorgt. De voortuin is voorzien van sierbestrating en -beplanting en een ruime oprit voor meerdere voertuigen. Ook is er een aangebouwde stenen garage. De woning is goed geïsoleerd, voorzien van zonnepanelen en op de begane grond is er vloerverwarming. Kortom: heerlijk comfortabel wonen met een gezin kan met deze woning zeker.
In 2021 zijn onder andere de begane grond en verdieping verbouwd. Er is een nieuwe luxe keuken en badkamer geplaatst, aan de achterzijde horren en screens aangebracht voor extra comfort op warme dagen. Ook is de woning voorzien van vloerverwarming. De tuin is volledig opnieuw aangelegd met nieuwe schuttingen en fraaie overkapping met berging. Daarnaast beschikt de woning over 10 zonnepanelen uit 2023. Dankzij de vele recente verbeteringen is dit een instapklaar woonhuis met een hoog afwerkingsniveau.
– instapklare vrijstaande woning op rustige locatie
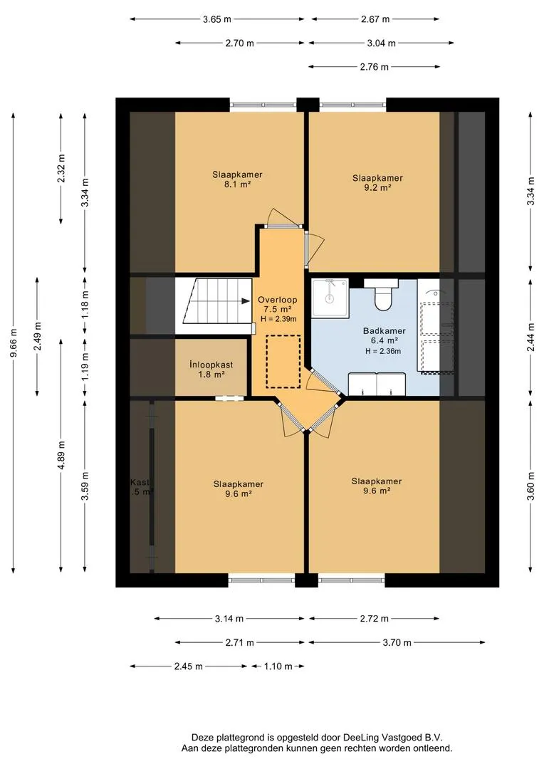
– in totaal 4 slaapkamers op de verdieping
– keurig aangelegde achtertuin voorzien van overkapping en berging
De Kooilanden is een rustige en ruim opgezette woonwijk in Dokkum. Het sfeervolle stadscentrum ligt op korte fietsafstand en is gemakkelijk bereikbaar. In de directe omgeving zijn diverse voorzieningen te vinden, zoals basisscholen, een supermarkt en sportfaciliteiten, waaronder de voetbalvelden en een zwembad. Daarnaast is er in de wijk voldoende parkeergelegenheid, wat het wonen hier extra comfortabel maakt. Maar vanuit de wijk ben je binnen enkele autominuten ook op de Centrale As richting Drachten en Leeuwarden.
Indeling: (zie ook de bijgevoegde plattegronden)
Begane grond:
– entree/hal voorzien van meterkast en trapopgang naar de verdieping
– toiletruimte met wandcloset en fonteintje
– sfeervolle L-vormige woonkamer van circa 34 m2
– aansluitend het eetgedeelte met fraaie pui over de gehele breedte van de woning met deuren naar de tuin
– open keuken met moderne opstelling (2021), voorzien van kook-spoeleiland en diverse inbouwapparatuur
– doorgang naar de aangebouwde, keurig afgewerkte stenen garage met aansluitingen voor het witgoed en een deur naar de tuin
Verdieping:
– overloop met luik naar de zolderverdieping
– slaapkamer 1 aan de voorzijde van circa 9,5 m2 met inloopkast
– slaapkamer 2 aan de voorzijde van circa 9,5 m2
– slaapkamer 3 aan de achterzijde van circa 9 m2
– slaapkamer 4 aan de achterzijde van circa 8 m2
– complete badkamer (2021) voorzien van een inloopdouche, ligbad, toilet en wastafelmeubel
Zolderverdieping:
– een praktische zolderberging, bereikbaar via een vlizotrap van circa 18,5 m2
Tuin:
– verzorgde voortuin voorzien van sierbeplanting en gazon
– circa 10 meter diepe achtertuin, gelegen op het zuidwesten, met achterom
– aangebouwde stenen garage en eigen oprit met voldoende parkeergelegenheid voor meerdere voertuigen
– achtertuin is voorzien van sierbeplanting, gazon, trampoline en houten overkapping met berging
Algemeen:
– bouwjaar circa 1998
– verwarming middels een cv-combiketel van Intergas (2021)
– elektra 9 groepen en dubbele kookgroep
– voorzien van maar liefst 10 zonnepanelen
Aan deze presentatie kunnen geen rechten worden ontleend. Toelichtingsclausule NEN2580. De Meetinstructie is gebaseerd op de NEN2580. De Meetinstructie is bedoeld om een meer eenduidige manier van meten toe te passen voor het geven van een indicatie van de gebruiksoppervlakte. De Meetinstructie sluit verschillen in meetuitkomsten niet volledig uit, door bijvoorbeeld interpretatieverschillen, afrondingen of beperkingen bij het uitvoeren van de meting.




















































