Omschrijving
Woning beschikbaar: Hoge Herenweg 12 in Marrum
Elke ochtend wakker worden in een landelijke woonomgeving en de opkomende zon die het landschap in een warme gloed zet. Dat is het dagelijkse begin op deze unieke plek. Een vrijstaande woning waar rust en ruimte naadloos samenkomen vanaf het moment dat je je ogen opent.
Deze goed onderhouden vrijstaande woning staat op een mooi perceel van 278 m² en beschikt op de begane grond over een gezellige straatgerichte woonkamer met balkenplafonds, een aparte keukenruimte (woonkeuken) voorzien van diverse inbouwapparatuur, een bijkeuken en een moderne badkamer met inloopdouche en wastafelmeubel. Op dit moment heeft de woning 1 ruime slaapkamer op de verdieping, welke opgedeeld kan worden in meerdere slaapkamers.
De zij- en voortuin zijn onderhoudsarm en volledig voorzien van bestratingen. De zijtuin is gelegen op het zonnige zuidwesten en voorzien van een mooie overkapping. Aan de achterzijde bevindt zich een aangebouwde berging, ideaal voor opslag of hobbyruimte.
– karakteristieke vrijstaande woning op een perceel van 278 m2
– voorzien van energielabel D
– oprit voor meerdere auto’s
– mogelijkheid voor het realiseren van een slaapkamer op de begane grond
In het nabijgelegen dorp Marrum zijn een aantal winkels, een supermarkt, een basisschool en diverse sportverenigingen aanwezig. Het totaal aantal inwoners is circa 1400. De stad Leeuwarden ligt op circa 15 km van het dorp. Vanuit Marrum is er een uitstekende busverbinding naar Leeuwarden. Voor meer informatie over het dorp kunt u kijken op de site marrumonline.nl
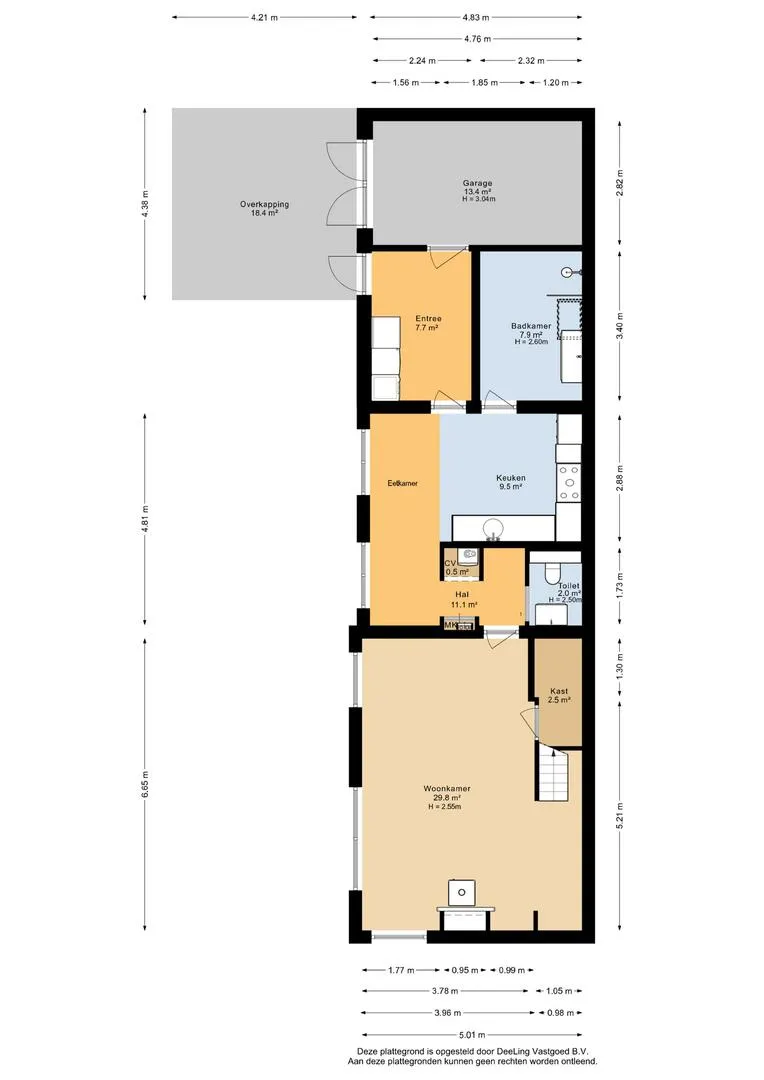
Indeling van de woning (zie ook de bijgevoegde plattegronden):
Begane grond:
– entree/hal/bijkeuken met witgoed-aansluitingen
– aansluitend de gezellige woonkeuken, voorzien van vloerverwarming
– L-vormige keukenopstelling (2018) met diverse inbouwapparatuur
– badkamer voorzien van vloerverwarming, dakraam, wastafel met meubel en een inloopdouche
– aparte toiletruimte (2023) met wandcloset en fonteintje
– ruime woonkamer van circa 30 m² met aansluiting van de houtkachel, trapkast en trapopgang naar de verdieping
Verdieping:
– slaapkamer van circa 23 m² over de gehele verdieping en voorzien van 2 dakkapellen
– deze verdieping is op te delen in meerdere slaapkamers
Tuin:
– volledig bestrate en onderhoudsvrije zij- en voortuin
– zijtuin gelegen op het zuidwesten, voorzien van een overkapping
Algemeen:
– bouwjaar circa 1872
– verwarming en warm water middels een Intergas HRE cv-combiketel uit 2024
– meterkast voorzien van 6 groepen
– voorzien van energielabel D
– woning is aangesloten op een beerput
Aan deze presentatie kunnen geen rechten worden ontleend.
Toelichtingsclausule BBMI. De meetinstructie is gebaseerd op de BBMI. De meetinstructie is bedoeld om een meer eenduidige manier van meten toe te passen voor het geven van een indicatie van de gebruiksoppervlakte. De meetinstructie sluit verschillen in meetuitkomsten niet volledig uit, door bijvoorbeeld interpretatieverschillen, afrondingen of beperkingen bij het uitvoeren van de meting.












































