Omschrijving
Woning beschikbaar: Grimbeert 8 in Kollum
Ruime 2-onder-1-kapwoning met vrijstaande stenen garage en berging in het bruisende dorp Kollum!
Op een mooie locatie, op fietsafstand van het centrum en met uitzicht op de haven, staat deze ruime 2-onder-1-kapwoning op een perceel van 424 m². Deze keurige woning beschikt op de begane grond over een ruime, lichte woonkamer met schuifpui, een open keuken met kookeiland en een bijkeuken aan de achterzijde. Op de verdiepingen bevinden zich in totaal 3 slaapkamers en een complete, moderne badkamer. Buiten ben je voorzien van een verzorgde voor- en achtertuin met een vrijstaande stenen garage met berging. De zijtuin (hoofdtuin) is gelegen op het zuidoosten en je beschikt over een gezellige overkapping, zonneterras en sierbeplanting. Kortom, een instapklare woning om met een gezin te wonen.
– ruime, uitgebouwde 2-onder-1-kapwoning met garage en berging (voorheen dubbele garage), verwarmd en geïsoleerd met mogelijkheid voor een kantoor/thuiswerkplek!
– 3 ruime slaapkamers en een complete luxe badkamer (2023) op de verdiepingen
– verzorgde tuin, met hoofdtuin gelegen op het zuidoosten
– voorzien van 21 zonnepanelen
– voorzien van elektrisch bedienbare screens
In het dorp Kollum zijn diverse soorten winkels, supermarkten, basisscholen en sportverenigingen aanwezig. Het totaal aantal inwoners is circa 6000. Vanuit het dorp is er een uitstekende busverbinding naar Dokkum en Leeuwarden. Het dorp Buitenpost bevindt zich op 5 km vanwaar de trein vertrekt naar Groningen en Leeuwarden. De woning bevindt zich in het centrum van het dorp, waardoor winkels en horeca op loopafstand te vinden zijn.
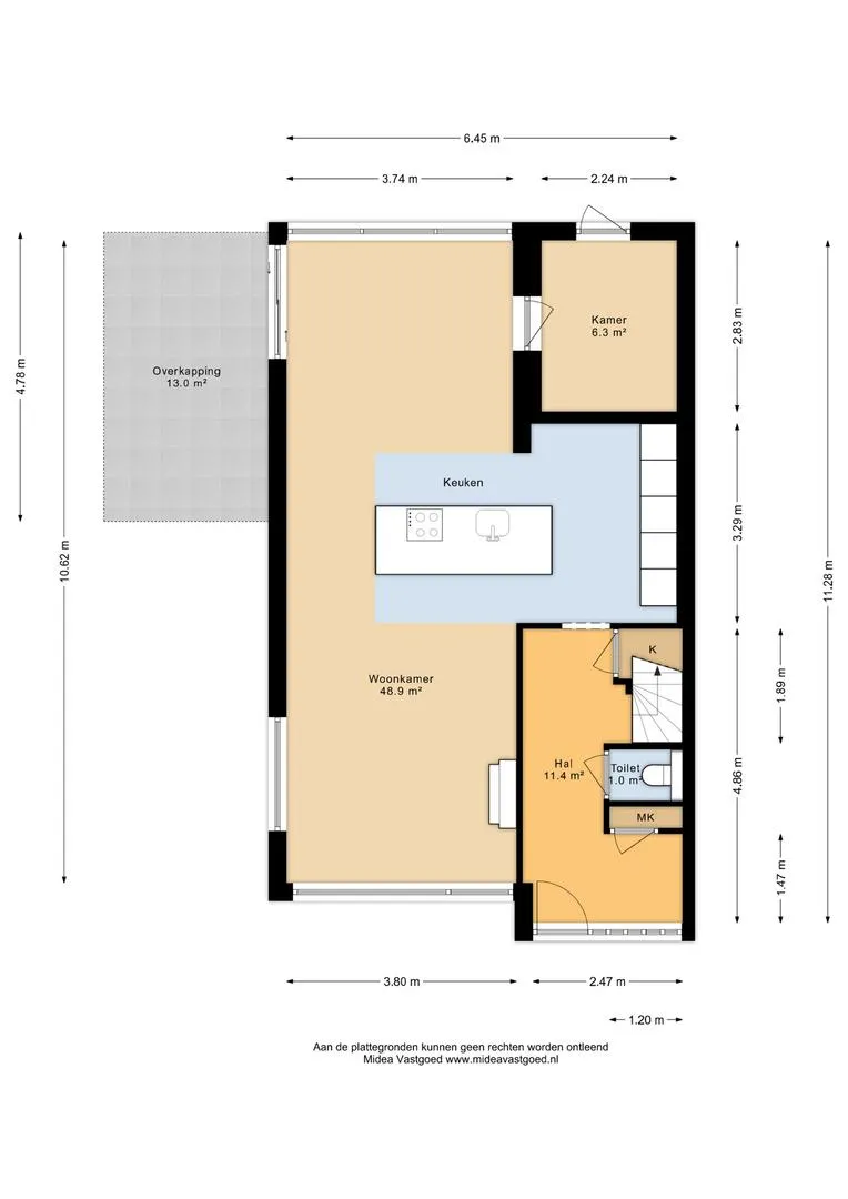
Indeling van de woning (zie ook de bijgevoegde plattegronden):
Begane grond:
– entree/hal met meterkast, trapkast en trapopgang naar de verdieping
– toiletruimte met wandcloset
– woonkamer met aansluitend het eetgedeelte en schuifpui naar de overkapping/tuin
– aangebouwde (2018) open keukenruimte met kookeiland
– keuken (2018) voorzien van inductiekookplaat met ingebouwde afzuiging, oven, koel-vriescombinatie en een vaatwasser
– bijkeuken met toegangsdeur naar de achtertuin
Verdieping:
– overloop met vaste trap naar de zolderverdieping
– slaapkamer 1 aan de achterzijde van circa 9 m²
– slaapkamer 2 aan de achterzijde van circa 14 m² met kastenwand
– complete badkamer (2023) met vloerverwarming, hoekbad/whirlpool, douche met sunshower en dubbel wastafelmeubel
– waskamer met witgoedaansluiting, warmtepompboiler en een 2e toilet (wandcloset)
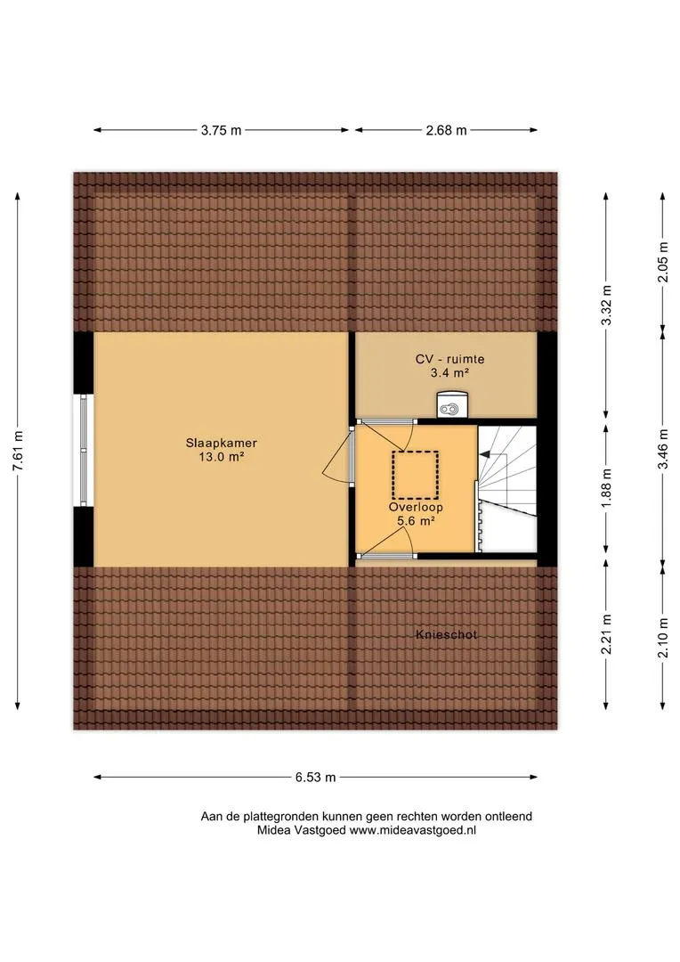
Zolderverdieping:
– overloop met dakraam en bergruimte achter het knieschot
– cv-ruimte met opstelplaats van de Intergas cv-combiketel (2021)
– 3e slaapkamer van circa 13 m²
Tuin:
– ruime voortuin met sierbestrating, groen en een sierhekwerk
– verzorgde zij en achtertuin met zonneterras, royale overkapping en sierbeplanting
– geïsoleerde vrijstaande stenen garage met geïsoleerde berging (voorheen dubbele garage)
– eigen oprit met parkeergelegenheid voor 2 auto’s
Algemeen:
– meterkast voorzien van 10 groepen met aardlekschakelaars en een krachtgroep
– woning is voorzien van energielabel D!
– deels voorzien van vloer-, muur- en dakisolatie
– voorzien van 21 zonnepanelen
– verwarming en warm water middels een combiketel van Intergas (2021), een Intergas hybride warmtepomp en Atlantic 270 liter warmtepompboiler
– alle openslaande ramen en de schuifpui zijn voorzien van horren
– dakbedekking bijkeuken vernieuwd in 2018 en dak garage en berging vervangen in 2024
Aan deze presentatie kunnen geen rechten worden ontleend.
Toelichtingsclausule BBMI. De meetinstructie is gebaseerd op de BBMI. De meetinstructie is bedoeld om een meer eenduidige manier van meten toe te passen voor het geven van een indicatie van de gebruiksoppervlakte. De meetinstructie sluit verschillen in meetuitkomsten niet volledig uit, door bijvoorbeeld interpretatieverschillen, afrondingen of beperkingen bij het uitvoeren van de meting.























































