Omschrijving
Woning verkocht: Foarstrjitte 82 in De Westereen
Prachtige vrijstaande jaren ’30-woning met uitbouw en ruime vrijstaande houten garage
Op een mooie woonstand, aan een doorgaande straat, staat deze sfeervolle jaren ’30-woning met vrijstaande houten garage op een royaal perceel van 687 m². De woning is aan de achterzijde uitgebouwd, waardoor er een aparte eetkamer is gerealiseerd. Diverse authentieke elementen zijn behouden gebleven, zoals balkenplafonds, een erker, paneeldeuren en glas-in-loodramen.
De woning beschikt over drie slaapkamers op de verdieping en een douchegelegenheid op de begane grond. Buiten vindt u een lange oprit met parkeergelegenheid voor meerdere auto’s en een heerlijke tuin rondom de woning. De achtertuin is maar liefst 19 meter diep en ligt op het zonnige zuidwesten.
Kortom, een prachtige woning met veel ruimte in en om het huis, op een fraaie locatie en op loopafstand van de winkels in De Westereen.
– Vrijstaande woning op een royaal perceel van 687 m²
– Diepe achtertuin, gelegen op het zonnige zuidwesten
– In totaal 3 slaapkamers
– Vrijstaande houten garage (ca. 25 m²) met vliering en elektra
In het dorp De Westereen zijn diverse voorzieningen aanwezig, waaronder winkels, supermarkten, basisscholen en sportverenigingen. Het dorp telt circa 5.000 inwoners en beschikt over een eigen treinstation met verbindingen richting Groningen en Leeuwarden.
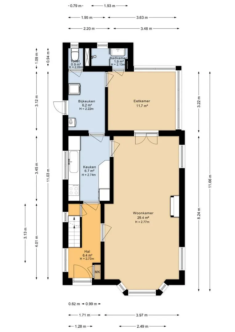
INDELING (zie ook de bijgevoegde plattegronden)
Begane grond :
– entree/hal met meterkast, trapopgang en afgesloten trap naar de kelder
– sfeervolle woonkamer van ca. 29 m² met balkenplafonds, erker en schouw
– aansluitend de tuingerichte eetkamer van ca. 12 m²
– nette doucheruimte voorzien van wastafelmeubel
– afgesloten keuken van ca. 7 m² met eenvoudige keukeninrichting en diverse inbouwapparatuur
– bijkeuken van ca. 6 m² met witgoedaansluitingen, cv-opstelling en toegangsdeur naar de oprit
– toiletruimte met staand toilet
Verdieping:
– overloop met dakkapel, inloopkast en vlizotrap naar de vliering
– twee slaapkamers aan de voorzijde, beide ca. 6 m²
– derde slaapkamer aan de achterzijde van ca. 11 m² met inbouwkasten, wastafel en deur naar het platte dak
Vliering:
– via vlizotrap bereikbare vliering/bergzolder
Rondom de woning:
– vrijstaande houten garage van ca. 25 m² met betonvloer, elektra en vliering
– vrijstaande stenen berging van ca. 9 m² met elektra
– royale, groene achtertuin van ca. 19 meter diep met gazon, sierbeplanting en bestrating
– tuin gelegen op het zuidwesten
– parkeermogelijkheid voor meerdere auto’s op eigen oprit
Algemeen:
– bouwjaar: ca. 1935
– verwarming en warm water via Intergas HR-combiketel (2022)
– meterkast voorzien van 6 groepen, een kookgroep en 2 aardlekschakelaars
– deels voorzien van dubbele beglazing
Aan deze presentatie kunnen geen rechten worden ontleend.
Toelichtingsclausule BBMI:
De meetinstructie is gebaseerd op de BBMI en bedoeld om op een eenduidige manier de gebruiksoppervlakte te meten. De instructie sluit verschillen in meetuitkomsten niet volledig uit, bijvoorbeeld door interpretatieverschillen, afrondingen of beperkingen bij het uitvoeren van de meting.



























































