Omschrijving
Woning verkocht: Efterwei 9 in Nes
Leuke 2-onder-1-kapwoning met aangebouwde bijkeuken en een vrijstaande garage, midden in het gezellige dorp Nes. De woning staat op een mooi perceel van 218 m2 en beschikt op de begane grond over een lichte, knusse woonkamer, een aparte keukenruimte voorzien van diverse inbouwapparatuur, een bijkeuken en de moderne badkamer met inloopdouche, wastafel en wandcloset. Op de verdieping bevinden zich 3 slaapkamers en een kleine bergzolder. Buiten heb je een voortuin met een gazon en een onderhoudsarme achtertuin, gelegen op het noordwesten, voorzien van een vrijstaande houten garage/berging. De woning heeft energielabel D mede door de muurisolatie en dubbele beglazing. Kortom, een fijne woning op een rustige woonstand die zeer geschikt is voor starters of jonge gezinnen.
– knusse jaren ’50 woning geschikt voor o.a. starters
– totaal 3 slaapkamers
– moderne badkamer voorzien van inloopdouche, wastafel en wandcloset
In het gemoedelijke dorp Nes, gelegen in de gemeente Noardeast-Fryslân, wonen circa 350 inwoners. Voorzieningen zijn te vinden in omliggende dorpen en in de nabijgelegen stad Dokkum. Op korte afstand liggen de Waddenzee, UNESCO Werelderfgoed, en Nationaal Park Lauwersmeer, waar volop mogelijkheden zijn om te wandelen, fietsen en van de natuur te genieten.
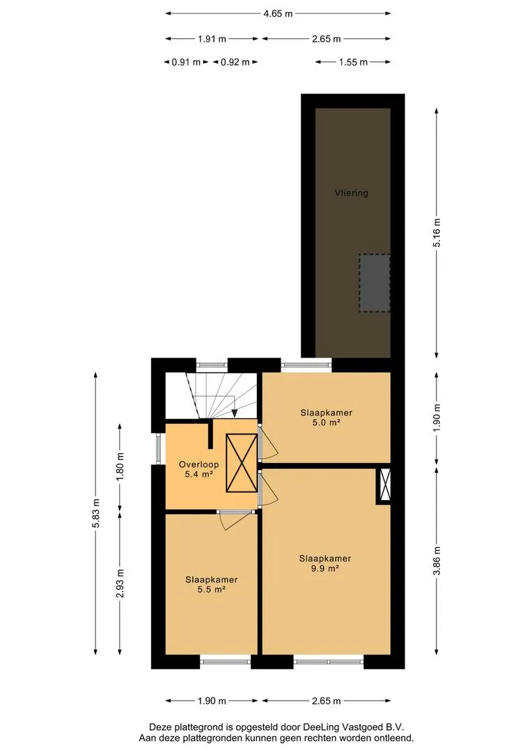
Indeling: (zie ook de bijgevoegde plattegronden)
Begane grond:
– entree/hal met meterkast en trapopgang naar de eerste verdieping
– lichte woonkamer van circa 16 m2 met vaste kast
– dichte keuken van circa 6 m2 voorzien van gaskookplaat, afzuigkap, combi-oven en koelkast
– bijkeuken met cv-opstelling, witgoedaansluiting, luik naar de vliering, deur naar de achtertuin en deur naar de badkamer
– moderne badkamer (2012) van circa 4 m2 voorzien van inloopdouche, wastafel en wandcloset
Verdieping:
– overloop met luik naar de vliering en ruimte voor een inloopkast
– slaapkamer 1 aan de voorzijde van circa 10 m2
– slaapkamer 2 aan de voorzijde van circa 6 m2
– slaapkamer 3 aan de achterzijde van circa 5 m2
Vliering:
– via luik bereikbare kleine vliering met bergruimte
Tuin:
– voortuin met een gazon
– onderhoudsvrije achtertuin, gelegen op het noordwesten, met sierbestrating en achterom
– vrijstaande houten berging/garage van circa 29 m2
– gezamenlijke oprit met parkeergelegenheid
Algemeen:
– verwarming en warm water middels een CV-ketel Intergas HRE28/24 CW4 (2024)
– meterkast voorzien van 5 automaten en 1 aardlekschakelaar
– energielabel D
Aan deze presentatie kunnen geen rechten worden ontleend.
Toelichtingsclausule NEN2580. De Meetinstructie is gebaseerd op de NEN2580. De Meetinstructie is bedoeld om een meer eenduidige manier van meten toe te passen voor het geven van een indicatie van de gebruiksoppervlakte. De Meetinstructie sluit verschillen in meetuitkomsten niet volledig uit, door bijvoorbeeld interpretatieverschillen, afrondingen of beperkingen bij het uitvoeren van de meting.









































