Omschrijving
Woning verkocht onder voorbehoud: Easter Omwei 29 in Hurdegaryp
Ben jij op zoek naar een verrassend ruime tussenwoning met maar liefst 4 slaapkamers, een fijne, groene achtertuin en stenen berging met carport in het mooie dorp Hurdegaryp? Dan is dit huis echt iets voor jou!
Op een mooie locatie, aan een rustige straat, staat deze verrassend ruime tussenwoning op een perceel van 190 m².
De woning beschikt op de begane grond over een lichte doorzonwoonkamer met aansluitend het eetgedeelte. De halfopen keuken van 2022 is voorzien van een bar en diverse inbouwapparatuur. Op de verdieping bevinden zich 3 ruime, nette slaapkamers en een nette badkamer voorzien van ligbad, wastafel en een tweede toilet. De zolderverdieping, welke bereikbaar is via een vaste trap, is voorzien van een ruime overloop met berging en cv-opstelling en de mogelijkheid voor het realiseren van een royale 4e slaapkamer. De fijne, groene achtertuin, is voorzien van sierbeplanting en bestrating. Een heerlijke plek om van het buitenleven te genieten. Via de schuttingdeur bereik je de vrijstaande stenen berging met overkapping waar mogelijkheid is om te parkeren. Kortom, een perfecte woning voor starters en gezinnen, met diverse voorzieningen op loopafstand, zoals een supermarkt en basisschool.
– fijne eengezinswoning gelegen in een rustige buurt
– in totaal 4 ruime slaapkamers op de verdiepingen
– vrijstaande stenen berging met overkapping aan de achterzijde met parkeergelegenheid op eigen terrein
Hurdegaryp is een geliefd dorp met een uitstekende bereikbaarheid en veel voorzieningen. Het biedt onder andere een winkelcentrum met een Albert Heijn, een bakker, slager en enkele andere winkels. Er is ook een Poiesz-supermarkt, scholen voor basis- en voortgezet onderwijs, kinderopvang etc. Groot voordeel van Hurdegaryp is dat het openbaar vervoer er optimaal is; er is een treinstation met treinen richting Leeuwarden en Groningen en er is busvervoer richting Leeuwarden, Drachten etc. De ligging vlakbij de Sintrale As maakt dat je met de auto ook vlot richting Leeuwarden, Dokkum, Drachten en Heerenveen rijdt. Liever fietsen of wandelen? In de omgeving kun je genieten van de natuur van de Friese Wouden met de kenmerkende boomwallen. Een fijne plek om te wonen dus!
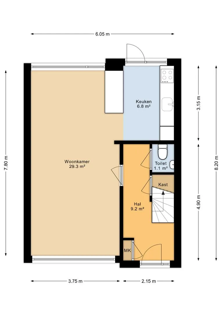
Indeling van de woning (zie ook de bijgevoegde plattegronden):
Begane grond:
– entree/hal met meterkast, trapkast en trapopgang naar de verdieping
– aparte toiletruimte voorzien van staand toilet en fonteintje
– doorzonwoonkamer van circa 29 m² met aansluitend het eetgedeelte
– open keuken (2022) van circa 7 m² met een nette keukeninrichting voorzien van een bar en diverse inbouwapparatuur
– keukenopstelling met inductiekookplaat, afzuigkap, combi-oven, koel-vriescombinatie en vaatwasser
Verdieping:
– overloop met wandkast en vaste trap naar de zolderverdieping
– slaapkamer 1 van circa 12 m2 aan de voorzijde met vaste kasten en balkon op het zuiden
– slaapkamer 2 van circa 15 m2 aan de achterzijde met vaste kasten
– slaapkamer 3 van circa 8 m2 aan de achterzijde
– eenvoudige badkamer met ligbad met douche, wastafel met wastafelmeubel en staand toilet
Zolderverdieping:
– zolderverdieping welke via vaste trap bereikbaar is
– overloop met cv-opstelling en berging
– 4e nog te realiseren slaapkamer van circa 16 m2 voorzien van dakraam
Tuin
– fijne, groene achtertuin van circa 13 meter diep, gelegen op het noorden, met achterom
– vrijstaande stenen berging van circa 8 m2 met aangebouwde carport met parkeergelegenheid op eigen terrein
Algemeen:
– verwarming en warm water middels een Vaillant HR-107 ketel (2007)
– elektra middels 6 automaten en een kookgroep
– voorzien van energielabel B
Aan deze presentatie kunnen geen rechten worden ontleend.
Toelichtingsclausule BBMI. De Meetinstructie is gebaseerd op de BBMI. De Meetinstructie is bedoeld om een meer eenduidige manier van meten toe te passen voor het geven van een indicatie van de gebruiksoppervlakte. De Meetinstructie sluit verschillen in meetuitkomsten niet volledig uit, door bijvoorbeeld interpretatieverschillen, afrondingen of beperkingen bij het uitvoeren van de meting.

















































