Omschrijving
Woning beschikbaar: Dotingastate 54 in Leeuwarden
Instapklare gezinswoning met karakter in Camminghaburen!
Zoek je een sfeervolle woning op een rustige plek met alle voorzieningen binnen handbereik? Deze woning is recent gerenoveerd en biedt veel comfort. Op de begane grond vind je een ruime, lichte L-vormige woonkamer met moderne, open keuken (inclusief eiland!). Via de deuren kom je in de tuin terecht, een fijne verbinding tussen binnen en buiten. De woning beschikt over maar liefst 5 slaapkamers, verdeeld over de verdiepingen. Op de eerste verdieping vind je tevens een prachtige badkamer met inloopdouche en wandcloset. De woning is uitstekend geïsoleerd en afgelopen jaar volledig gemoderniseerd. Kortom, een woning waar je zo in kunt!
– instapklare gezinswoning met 5 slaapkamers
– energielabel A, gevel- en dakisolatie en 4 zonnepanelen (april 2026)!
– gelegen in de gewilde wijk Camminghaburen, dichtbij de voorzieningen en op fietsafstand van de binnenstad!
Camminghaburen is één van de meest gewilde woonwijken van Leeuwarden. Hier woon je ruim en rustig, met volop groen en water in de omgeving. De wijk heeft een eigen winkelcentrum, station en basisscholen, én ligt pal naast het recreatiegebied De Groene Ster. Ideaal voor wie houdt van wandelen, fietsen of watersport. Tegelijkertijd ben je in no-time in de binnenstad van Leeuwarden of op de snelweg richting Groningen of de Randstad.
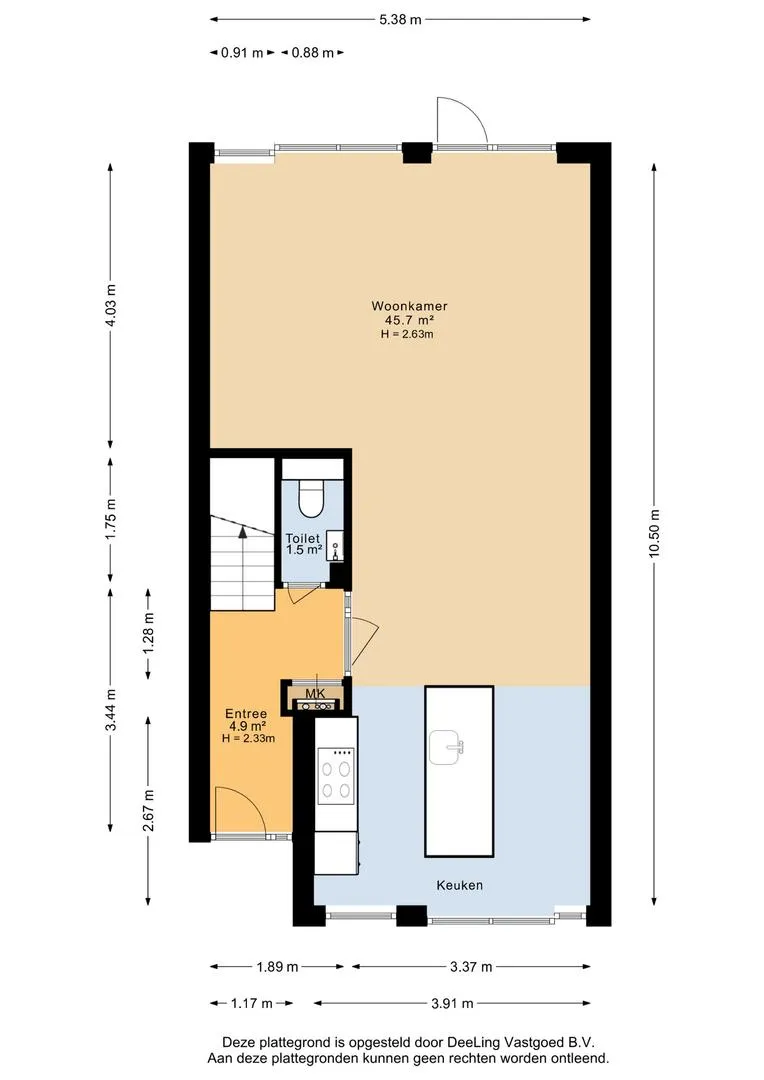
Begane grond:
– entree/hal met trapopgang naar de verdieping en meterkast
– toiletruimte met wandcloset en fonteintje
– ruime woonkamer van circa 46 m2 met deur naar de achtertuin
– moderne, open keuken met kookeiland
Eerste verdieping:
– overloop met vaste trap naar tweede verdieping
– slaapkamer 1 aan de voorzijde van circa 10 m2, met dakraam en vaste kast
– slaapkamer 2 aan de voorzijde van circa 8 m2
– Slaapkamer 3 aan de achterzijde van circa 11 m2, met dakraam
– slaapkamer 4 aan de achterzijde van circa 9 m2, met dakraam
– moderne badkamer met wastafelmeubel, inloopdouche en wandcloset
Tweede verdieping:
– overloop, voorzien van dakraam en toegang tot bergruimte/cv-ruimte
– slaapkamer 5 van 9 m2
Buiten:
– onderhoudsvriendelijk voor- en achtertuin
– circa 12 meter diepe achtertuin, gelegen op het zuiden en voorzien van houten tuinhuis
Algemeen:
– gevels en dak uitstekend geïsoleerd: energielabel A!
– verwarming en warm water middels Intergas HR ketel (2024)
– meterkast voorzien van 8 groepen
Toelichtingsclausule NEN2580
De Meetinstructie is gebaseerd op de NEN2580. De Meetinstructie is bedoeld om een meer eenduidige manier van meten toe te passen voor het geven van een indicatie van de gebruiksoppervlakte. De Meetinstructie sluit verschillen in meetuitkomsten niet volledig uit, door bijvoorbeeld interpretatieverschillen, afrondingen of beperkingen bij het uitvoeren van de meting.















































