Omschrijving
Woning verkocht: De Twee Gebroeders 321 in Drachten
Verrassend ruime, instapklare tussenwoning in Drachten met 3 slaapkamers en fijne achtertuin op het zuidwesten!
Op een fijne locatie, in een kindvriendelijke woonomgeving, staat deze leuke instapklare woning. De woning heeft een lichte, tuingerichte woonkamer met aansluitend het eetgedeelte en de open keuken aan de voorzijde. Op de eerste verdieping beschikt de woning over 3 slaapkamers en door de aanwezigheid van een vaste trap naar de zolder is een 4e slaapkamer mogelijk. Buiten bevindt zich een fijne achtertuin, voorzien van achterom en berging, gelegen op het zonnige zuidwesten. Kortom, een heerlijke woning voor starters en gezinnen in de gewilde buurt ‘De Folgeren’ met een basisschool en diverse speeltuinen op loopafstand. Op de fiets ben je binnen enkele minuten bij het winkelcentrum ‘De Noorderpoort’ en/of het centrum van Drachten.
– in totaal 3 slaapkamers (mogelijkheid voor een 4e op de zolderverdieping)
– achtertuin van circa 11 meter diep met achterom en berging, gelegen op het zuidwesten
– voorzien van energielabel A
– voorzien van 9 zonnepanelen
Park De Folgeren is op korte loopafstand met een grote vijver en veel groen, een losloop-gebied voor honden en speel- en sportvoorzieningen voor kinderen. Twee basisscholen en huisarts zijn op loopafstand en de woning is op fietsafstand van winkelcentrum Noorderpoort met veel voorzieningen. Vanuit de wijk ben je binnen enkele autominuten op de snelweg richting Heerenveen/Groningen en Leeuwarden.
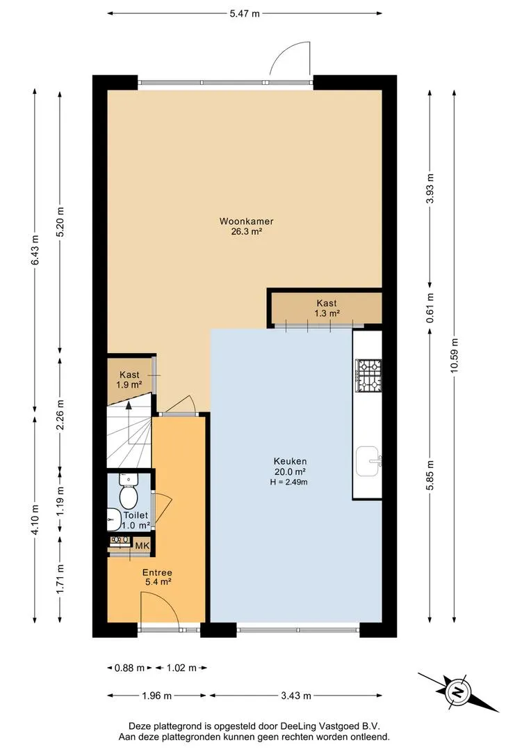
Indeling van de woning (zie ook de bijgevoegde plattegronden):
Begane grond:
– entree/ hal voorzien van meterkast en trapopgang naar de verdieping
– toiletruimte met fonteintje
– tuingerichte woonkamer van circa 26 m² met trapkast en toegangsdeur naar de achtertuin
– open keukenruimte, met recente keukenopstelling (2023) voorzien van 5-pits gaskookplaat, afzuigkap, vaatwasser, grote combi-oven en een koel-vriescombinatie
Verdieping:
– overloop met vaste trapopgang naar de zolderverdieping
– slaapkamer 1 aan de achterzijde van circa 17 m2
– slaapkamer 2 aan de achterzijde van circa 8 m², voorzien van een dakraam
– slaapkamer 3 aan de voorzijde van circa 10 m², eveneens voorzien van een dakraam
– eenvoudige badkamer van circa 4 m², voorzien van een douche, 2e toilet en een wastafel
Zolderverdieping:
– open ruimte van circa 10 m² met dakraam, witgoedaansluitingen en cv-opstelling
– mogelijkheid voor het realiseren van een extra slaapkamer
Tuin
– onderhoudsarme voortuin voorzien van beplanting, grind en bestrating
– circa 11 meter diepe en volledig bestrate achtertuin, gelegen op het zuidwesten
– vrijstaande houten berging van circa 7 m², voorzien van elektra
Algemeen
– bouwjaar circa 1984
– verwarming en warm water middels een cv-combiketel van het merk Remeha (2017) in combinatie (verwarming) met een hybride warmtepomp merk Daikin (2023)
– meterkast voorzien van 9 groepen met 4 aardlekschakelaars
Aan deze presentatie kunnen geen rechten worden ontleend.
Toelichtingsclausule BBMI. De meetinstructie is gebaseerd op de BBMI. De meetinstructie is bedoeld om een meer eenduidige manier van meten toe te passen voor het geven van een indicatie van de gebruiksoppervlakte. De meetinstructie sluit verschillen in meetuitkomsten niet volledig uit, door bijvoorbeeld interpretatieverschillen, afrondingen of beperkingen bij het uitvoeren van de meting.












































