Omschrijving
Woning onder bod: De Skeakels 3 in Grou
Fraai gelegen 2-onder-1-kapwoning met 5 slaapkamers, stenen berging en carport.
Op een fijne locatie, in een kindvriendelijke woonomgeving, staat deze royale twee-onder-een-kapwoning op een perceel van 239 m². Een ideale gezinswoning, want je beschikt over maar liefst 5 nette slaapkamers en een badkamer, verdeeld over de verdiepingen. Op de begane grond heb je een tuingerichte woonkamer met tuindeuren naar de achtertuin. Ook vind je hier een nette keuken met diverse inbouwapparatuur. Buiten heb je veel ruimte aan voor- en achterzijde van de woning. De beschutte en onderhoudsvrije achtertuin is gesitueerd op het zonnige westen, waar je een heerlijk plekje hebt om te genieten van het buitenleven. Parkeren kan op eigen oprit of onder de carport. De woning is comfortabel en energiezuinig (energielabel A) dankzij gevel-, vloer- en dakisolatie en 11 zonnepanelen. Kortom: een fijne gezinswoning met volop comfort, ruimte en voorzieningen in de directe omgeving.
– ruime gezinswoning met maar liefst 5 slaapkamers
– uniek gelegen aan een pleintje, te bereiken door middel van een brug
– gunstig gelegen tussen Heerenveen en Leeuwarden
– 147 m² woonoppervlak
Het dorp Grou ligt centraal in Friesland en staat bekend als watersportdorp. Door de ligging aan de Friese wateren is het een geliefd dorp om in te wonen en te recreëren. Grou telt een kleine 6000 inwoners en heeft een erg gezellig centrum, meerdere havens aan het Pikmeer en een haven op het eiland De Burd. Grou is voorzien van 2 basisscholen, een middelbare school en een flink aantal sportverenigingen. Grou is voorzien van een treinstation, gelegen aan de rand van het dorp, en heeft een uitstekende trein- en busverbinding met de omliggende dorpen en steden. Ook met de auto is Grou goed bereikbaar door de ligging aan de A32. Leeuwarden, Heerenveen en Sneek liggen slechts op een steenworp afstand.
Indeling (zie ook plattegronden):
Begane grond
– ruime entree/hal met meterkast en trapopgang naar de verdieping
– toilet met wandcloset en fonteintje
– tuingerichte woonkamer van circa 28 m², voorzien van een houtkachel en tuindeuren naar de tuin
– halfopen straatgerichte keukenruimte van circa 18 m2
– keukeninrichting voorzien van een 5-pits gaskookplaat, afzuigkap, combi-oven, koelkast en vaatwasser
– bijkeuken voorzien van vaste kasten en toegang naar de oprit
Verdieping
– overloop met vaste trapopgang naar de tweede verdieping
– slaapkamer 1 aan de voorzijde van circa 13 m² met inbouwkast en toegang naar het balkon
– slaapkamer 2 aan de achterzijde van circa 11 m²
– slaapkamer 3 aan de achterzijde van circa 7 m²
– complete badkamer met ligbad, douche, dubbele wastafel met meubel en 2e toilet
Zolderverdieping
– overloop met inbouwkast
– cv-ruimte met opstelplaats van de cv-combiketel
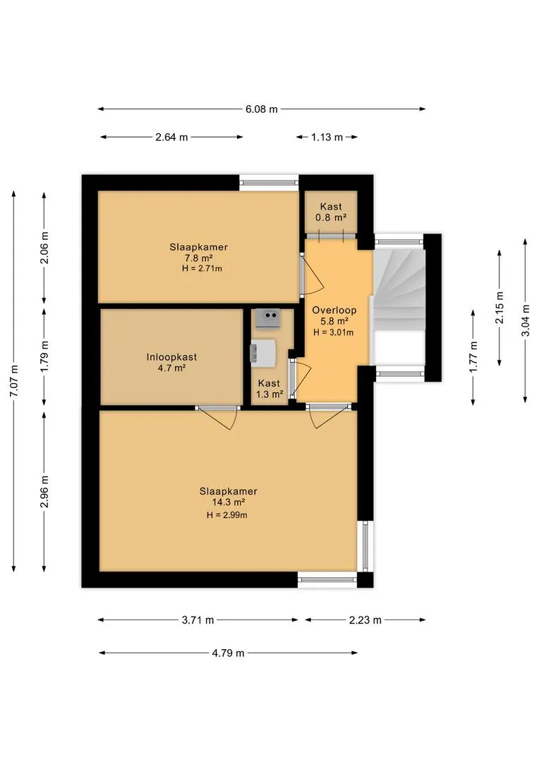
– slaapkamer 4 aan de voorzijde van circa 14 m² met royale inloopkast
– 5e slaapkamer aan de achterzijde van circa 8 m²
Buitenom:
– onderhoudsarme achtertuin gelegen op het zonnige westen met sierbestrating en toegang tot de berging
– aangebouwde houten berging van circa 7,5 m²
– stenen berging van circa 9 m², voorzien van elektra
– parkeergelegenheid voor meerdere voertuigen op eigen oprit
– aangebouwde carport
Algemeen:
– voorzien van een gunstig energielabel A!
– verwarming middels een Intergas cv-ketel en warmwater middels de cv-ketel en zonneboiler
– meterkast voorzien van 8 groepen met aardlekschakelaars
– bouwjaar 2000
Aan deze presentatie kunnen geen rechten worden ontleend.
Toelichtingsclausule BBMI. De meetinstructie is gebaseerd op de BBMI. De meetinstructie is bedoeld om een meer eenduidige manier van meten toe te passen voor het geven van een indicatie van de gebruiksoppervlakte. De meetinstructie sluit verschillen in meetuitkomsten niet volledig uit, door bijvoorbeeld interpretatieverschillen, afrondingen of beperkingen bij het uitvoeren van de meting.


























































