Omschrijving
Woning verkocht: De Hammeren 27 in Kollum
Ben je op zoek naar een ruime vrijstaande woning met veel slaapkamers, een garage en een fraai uitzicht over de landerijen? Dan is deze woning mogelijk iets voor jou!
Op een prachtige en rustige woonlocatie, aan de rand van het dorp Kollum, staat deze mooie vrijstaande woning met garage. Aan de achterzijde geniet je van een vrij en weids uitzicht over de landerijen – een heerlijke plek voor wie houdt van ruimte, rust en natuur. De woning is eind jaren ’90 op traditionele wijze gebouwd en door de jaren heen keurig onderhouden. Recent is er buiten nog een tuinhuis gerealiseerd, waardoor er een fijne verbinding is ontstaan tussen binnen en het buitenleven. Binnen vind je een lichte L-vormige woonkamer met erker, een afgesloten woonkeuken en vloerverwarming op de begane grond! Door de volledige isolatie en HR++-beglazing is de woning voorzien van energielabel C!
– vrijstaande woning op een ruim perceel van 592 m²
– 5 slaapkamers en 2 badkamers
– achtertuin gelegen op het noorden met uitzicht over de landerijen
– achtertuin recent voorzien van een mooi tuinhuis van circa 26 m2
– volledig geïsoleerd en voorzien van een energielabel C
Het levendige dorp Kollum telt bijna 6.000 inwoners en fungeert als een echte regiokern. U vindt hier alle voorzieningen die u zich kunt wensen: winkels, scholen, sport- en cultuurverenigingen en gezellige horecagelegenheden. Alles wat u nodig heeft, ligt binnen handbereik. Bovendien ligt de sneltreinverbinding Leeuwarden–Groningen op slechts 10 minuten afstand en bereikt u met de auto binnen een half uur steden als Leeuwarden, Groningen en Dokkum.
INDELING (zie ook de bijgevoegde plattegronden)
Begane grond (voorzien van vloerverwarming):
– entree/hal met meterkast en trapopgang naar de verdieping
– toiletruimte met wandcloset en fonteintje
– lichte en ruime woonkamer van circa 36 m² met erker
– afgesloten woonkeuken van circa 17 m² met tuindeuren en provisiekast met luik naar de kelder
– keukeninrichting uit 1999, voorzien van een koelkast, gaskookplaat, afzuigkap en een vaatwasser
– bijkeuken met witgoedaansluitingen, cv-opstelling en toegang tot de garage
– royale garage van circa 41 m² met trapopgang naar de verdieping
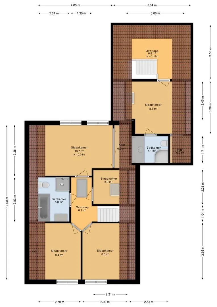
Verdieping woonhuis:
– overloop met vlizotrap naar de bergzolder
– slaapkamer 1 en 2 (voorzijde) van circa 8 m² en 9 m²
– slaapkamer 3 (zijkant) van circa 4 m² met dakraam
– slaapkamer 4 (achterzijde) van circa 14 m² met kastenwand
– badkamer van circa 6 m² met douche, ligbad, toilet, wastafel en een dakkapel
Verdieping garage:
– ruime overloop
– 5e slaapkamer van circa 9 m² met vaste kast en dakraam
– 2e badkamer met douche, wastafelmeubel en toilet
Vliering (woonhuis):
– middels een vlizotrap bereikbare ruime bergzolder
Tuin:
– fijne tuin rondom de woning, voorzien van een gazon en bestratingen
– vrijstaand houten tuinhuis van circa 26 m², voorzien van water, elektra en uitzicht over de landerijen
– ruime oprit, geschikt voor meerdere auto’s
Garage:
– aangebouwde royale stenen garage van circa 41 m²
– garage voorzien van verwarming en elektrisch bedienbare garagedeur
– naast de garage bevindt zich een carport, eventueel geschikt voor een aanhanger of caravan
Algemeen:
– verwarming en warm water middels een Bosch cv-ketel (2012)
– elektra middels 7 groepen met aardlekschakelaars
– BIG green waterfilter aanwezig
– woning voorzien van energielabel C
– bouwjaar 1999
Aan deze presentatie kunnen geen rechten worden ontleend.
Toelichtingsclausule BBMI: de meetinstructie is gebaseerd op de BBMI en is bedoeld om op een meer eenduidige manier de gebruiksoppervlakte aan te geven. Verschillen in meetuitkomsten kunnen echter niet volledig worden uitgesloten, bijvoorbeeld door interpretatieverschillen, afrondingen of beperkingen bij het uitvoeren van de meting.


























































