Omschrijving
Woning verkocht onder voorbehoud: De Anjen 141 in Leeuwarden
Starters, opgelet! Leuke tussenwoning met 3 slaapkamers op loopafstand van diverse voorzieningen in de wijk Bilgaard.
In de wijk Bilgaard, gelegen aan een hofje met voldoende parkeergelegenheid, staat deze ruime tussenwoning op een perceel van 139 m². Het betreft een woning die uitermate geschikt is voor bijvoorbeeld starters of een jong gezin. De woning beschikt over een lichte, tuingerichte woonkamer, een halfopen keukenruimte, een bijkeuken/berging en in totaal 3 slaapkamers en een badkamer op de verdieping. Door de recht opgetrokken muren kunnen alle vierkante meters in de woning optimaal worden benut. Je woont hier op loopafstand van vele voorzieningen zoals het winkelcentrum Bilgaard, zwembad De Blauwe Golf, sportvelden en met 5 minuten fietsen ben je in de binnenstad. Naast de ruimte en de gunstige ligging van deze woning is een pluspunt dat de woning voorzien is van gevelisolatie, dakisolatie, kruipruimteisolatie en kunststof kozijnen met HR++-beglazing, waardoor de woning een gunstig energielabel A heeft!
– achtertuin van ruim 11 meter diep, gelegen op het oosten
– woning is volledig voorzien van kunststof kozijnen met HR++ beglazing
– voorzien van 5 zonnepanelen (2023)
– gelegen aan een hofje met voldoende parkeergelegenheid
– nabij vele voorzieningen zoals het winkelcentrum, Leeuwarder bos en op 5 min fietsen van de binnenstad
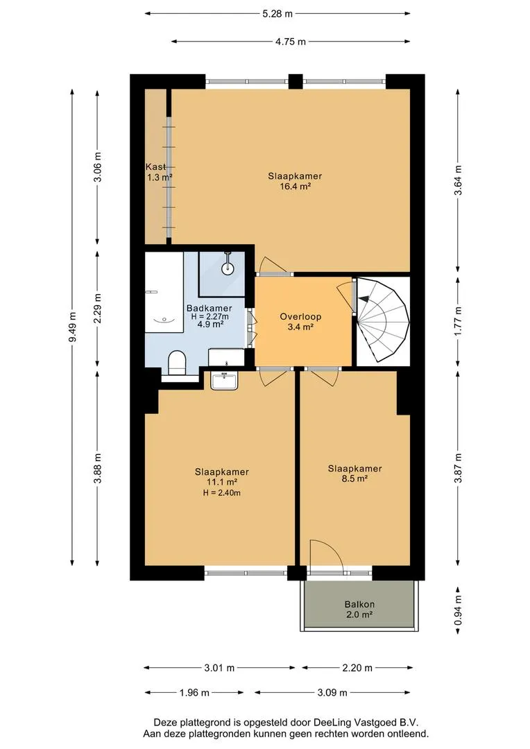
Indeling (zie ook de bijgevoegde plattegronden)
Begane grond:
– entree/hal met toegang naar berging
– moderne toiletruimte (2022) met wandcloset en fonteintje
– tuingerichte woonkamer van circa 30 m² met deur naar de achtertuin en trapopgang naar de verdieping
– halfopen keukenruimte met nette keukenopstelling (2022)
– keukeninrichting voorzien van een koelkast, inductiekookplaat, afzuigkap, combimagnetron/oven en een vaatwasser
– inpandige berging/bijkeuken voorzien van cv-opstelling en witgoed aansluiting
Verdieping:
– overloop
– slaapkamer 1 aan de voorzijde van circa 8,5 m² met toegang naar het balkon (west)
– slaapkamer 2 aan de voorzijde van circa 11 m² met wastafel
– royale 3e slaapkamer aan de achterzijde van circa 16 m² met inbouwkasten
– complete badkamer (2022) met ligbad, douchehoek, wastafelmeubel en wandcloset
Tuin:
– achtertuin van ruim 11 m², diep gelegen op het oosten
Algemeen:
– verwarming en warm water middels een cv-combiketel Remeha (2018)
– kruipruimte-, muur- en dakisolatie, HR++-beglazing en 5 zonnepanelen (energielabel A!)
– meterkast voorzien van 8 groepen met aardlekschakelaars
Aan deze presentatie kunnen geen rechten worden ontleend.
Toelichtingsclausule BBMI. De meetinstructie is gebaseerd op de BBMI. De meetinstructie is bedoeld om een meer eenduidige manier van meten toe te passen voor het geven van een indicatie van de gebruiksoppervlakte. De meetinstructie sluit verschillen in meetuitkomsten niet volledig uit, door bijvoorbeeld interpretatieverschillen, afrondingen of beperkingen bij het uitvoeren van de meting.







































