Omschrijving
Woning onder bod: Daslook 55 in Leeuwarden
Op een mooie locatie, in de kindvriendelijke wijk Aldlan-Oost, staat deze goed onderhouden eengezinswoning (type “Pakhuismodel”) op een perceel van 125 m² eigen grond.
Op een fijne locatie, in de kindvriendelijke wijk Aldlân-Oost, staat deze nette eengezinswoning op een perceel van 125 m². De woning beschikt op de begane grond over een tuingerichte woonkamer met aansluitend een halfopen keuken en een vrijstaande berging aan de voorzijde van de woning. Op de verdiepingen heb je een nette badkamer en in totaal 4 volwaardige slaapkamers. Aan de achterzijde heb je een verzorgde achtertuin met een terras gelegen op het zonnige zuidwesten, waar je heerlijk kunt genieten van het buitenleven.
– voorzien van 4 slaapkamers
– deels voorzien van kunststof kozijnen
– nette badkamer (circa 2017) met douche, wastafelmeubel en wandcloset
De woning is gelegen in de wijk Aldlân-Oost in Leeuwarden. In deze wijk zijn veel basisvoorzieningen terug te vinden. Hierbij kunt u denken aan een wijkcentrum met o.a. supermarkten, een huisartsenpraktijk, een basisschool, etc. Verder is de wijk goed aan te rijden door de ligging nabij de ring. Binnen 5 tot 10 autominuten rijdt u op de N31 of A32.
Indeling (zie ook de bijgevoegde plattegronden)
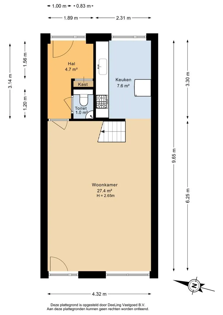
Begane grond:
– entree/hal met meterkast
– toiletruimte met wandcloset en fonteintje
– tuingerichte woonkamer van circa 27 m² met trapopgang naar de verdieping en deur naar de achtertuin
– halfopen keukenruimte voorzien van een eenvoudige doch nette keukenopstelling
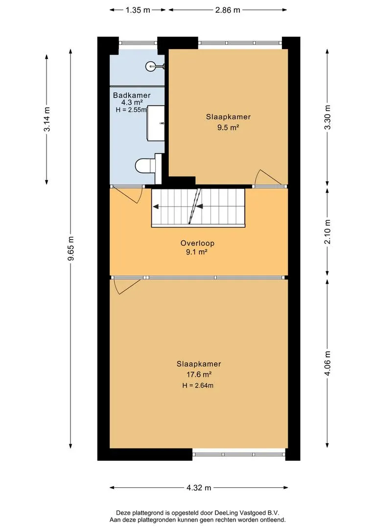
Verdieping:
– overloop met vaste trapopgang naar de zolderverdieping
– royale 1e slaapkamer (achterzijde) van circa 18 m2
– slaapkamer 2 (voorzijde) van circa 10 m2
– moderne badkamer met wandcloset, wastafelmeubel en douche
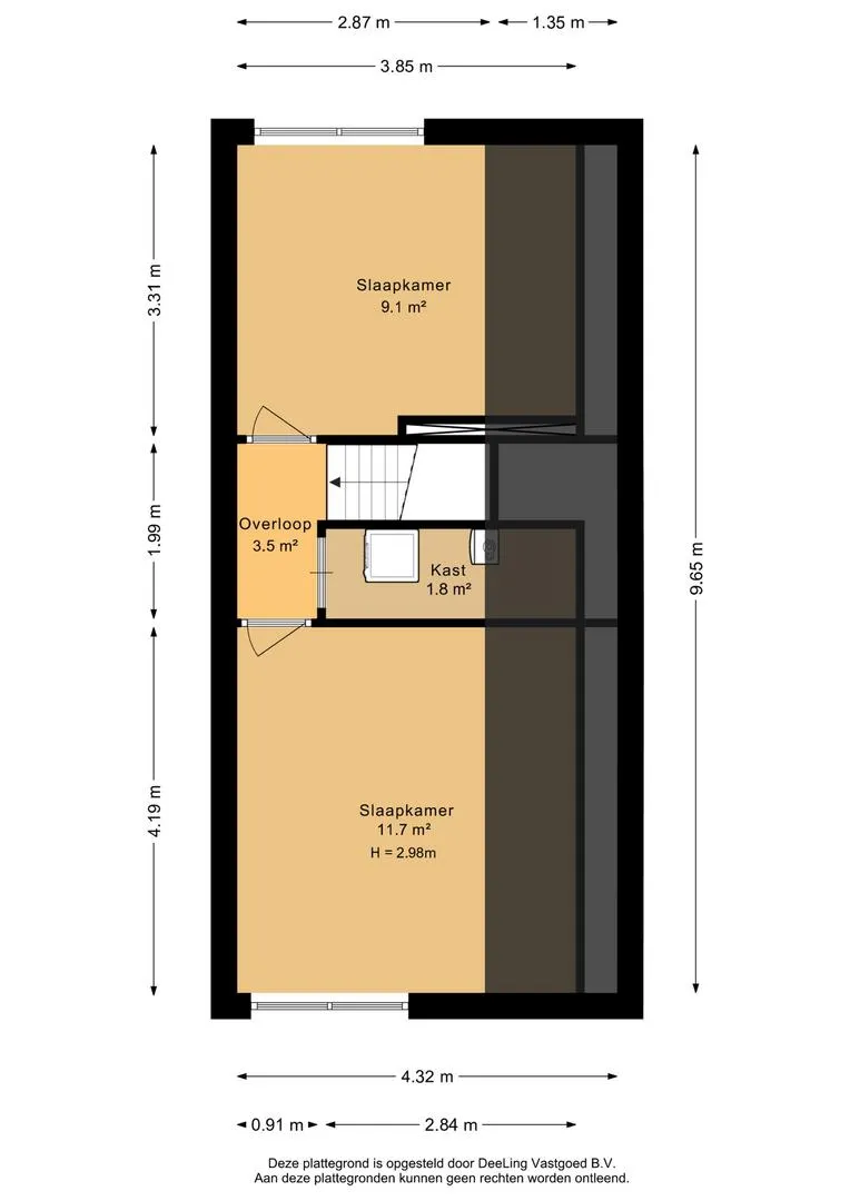
Zolderverdieping:
– overloop
– berging met cv-opstelling
– slaapkamer 3 (achterzijde) van circa 12 m2
– slaapkamer 4 (voorzijde) van circa 9 m2
Tuin:
– volledige bestrate voortuin met stenen berging van circa 9 m2
– onderhoudsarme achtertuin van circa 9,5 meter diep, gelegen op het zonnige zuidwesten!
Algemeen:
– verwarming en warm water middels een HR combiketel van het merk Remeha (2016)
– elektra middels 5 groepen
– bouwjaar circa 1973
– voorzien van energielabel C
Aan deze presentatie kunnen geen rechten worden ontleend.
Toelichtingsclausule NEN2580. De meetinstructie is gebaseerd op de NEN2580. De meetinstructie is bedoeld om een meer eenduidige manier van meten toe te passen voor het geven van een indicatie van de gebruiksoppervlakte. De meetinstructie sluit verschillen in meetuitkomsten niet volledig uit, door bijvoorbeeld interpretatieverschillen, afrondingen of beperkingen bij het uitvoeren van de meting
















































