Omschrijving
Woning beschikbaar: Bruneel 29 in Kollum
Twee-onder-een kap woning met eigen oprit en drie slaapkamers op een perceel van 239 m²!
Op een rustige woonstand, in een kindvriendelijke omgeving, staat deze keurig onderhouden woning met een vrijstaande houten garage (deze is aan vervanging toe) op een mooie kavel. Op de begane grond vind je een royale Z-vormige woonkamer en een open keuken met een hoekopstelling. De verdieping biedt drie slaapkamers en een moderne badkamer van 2025 (met vloerverwarming). Buiten beschikt de woning over een heerlijke, circa 10 meter diepe tuin op het westen, met gazon, sierbeplanting, een terras en de vrijstaande houten garage. De oprit biedt ruimte voor meerdere voertuigen. Aan de achterzijde van de woning is een plantsoen, waardoor je veel privacy ervaart.
– voorzien van HR beglazing, gevel- en dakisolatie
– energielabel C
– 3 slaapkamers
– recent (juli 2025) vernieuwde badkamer met vloerverwarming, inloopdouche, wandcloset en dubbele wastafel
In het dorp Kollum zijn diverse soorten winkels, supermarkten, basisscholen, middelbare scholen en sportverenigingen aanwezig. Het totaal aantal inwoners is circa 6000. Vanuit het dorp is er een uitstekende busverbinding naar Dokkum en Leeuwarden. Het dorp Buitenpost bevindt zich op 5 km vanwaar de trein vertrekt naar Groningen en Leeuwarden. Hierdoor is ook woon-werkverkeer geen probleem en ben je binnen een half uur in één van de beide steden.
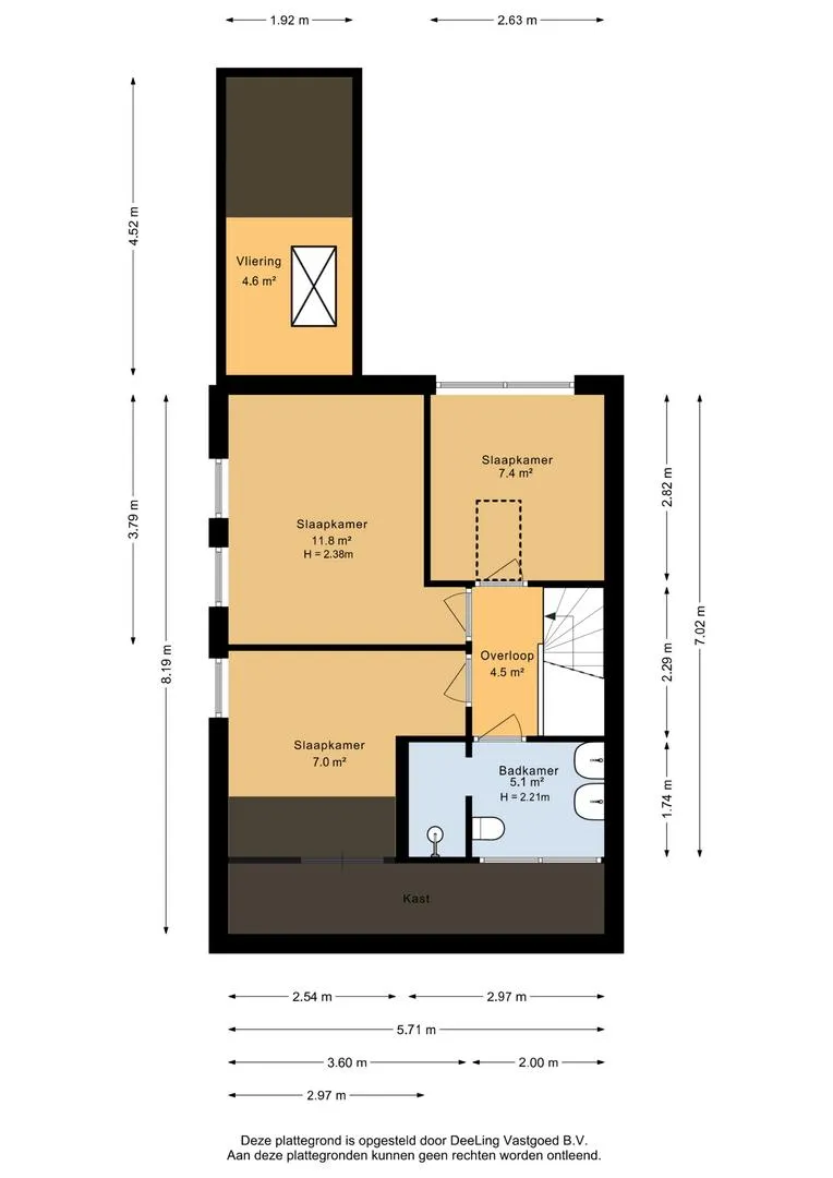
Indeling (zie ook bijgevoegde plattegrond om een beter beeld te krijgen):
Begane grond:
– entree, hal en meterkast en trapopgang naar de verdieping
– toiletruimte met wandcloset
– lichte Z-vormige woonkamer met trapkast
– open keuken met een nette L-vormige keukeninrichting
– keukeninrichting voorzien van koelkast, vaatwasser, oven, gaskookplaat en een afzuigkap
– bijkeuken met vliering, witgoedopstelling, cv-opstelling en deur naar de achtertuin
Verdieping:
– overloop
– slaapkamer 1 aan de voorzijde van circa 7 m²
– slaapkamer 2 aan de achterzijde van circa 12 m²
– slaapkamer 3 aan de achterzijde van circa 7 m² met luik naar de vliering
– moderne badkamer (2025) met vloerverwarming, inloopdouche, wandcloset en een dubbel wastafelmeubel
Vliering:
– middels een luik (vanuit slaapkamer 3) toegang tot de bergzolder
Algemeen:
– circa 10 meter diepe achtertuin, gelegen op het zuidwesten, zonder buren aan de achterzijde
– vrijstaande houten garage (circa 14 m²) voorzien van elektra deze is aan vervanging toe
– elektra middels 7 automaten met aardlekschakelaar
– het betreft hier een ruime twee-onder-eenkap woning die zeker een bezichtiging waard is!
Aan deze presentatie kunnen geen rechten worden ontleend.
Toelichtingsclausule BBMI:
De meetinstructie is gebaseerd op de BBMI en bedoeld om op een eenduidige manier de gebruiksoppervlakte te meten. De instructie sluit verschillen in meetuitkomsten niet volledig uit, bijvoorbeeld door interpretatieverschillen, afrondingen of beperkingen bij het uitvoeren van de meting.













































