Omschrijving
Woning beschikbaar: Brédyk 20 in Jelsum
Recentelijke gemoderniseerde twee-onder-een-kapwoning met uitzicht over de landerijen!
In het mooie dorp Jelsum staat aan de doorgaande weg naar Leeuwarden deze in 2025 gemoderniseerde twee-onder-een-kapwoning. De woning is van alle gemakken voorzien en volledig instapklaar. Met een moderne badkamer, een visgraatvloer, drie slaapkamers (waarvan één op de begane grond) en een complete keuken biedt deze woning een prachtige en sfeervolle plek om te wonen. De woning staat op een perceel van 286 m² en biedt aan de achterzijde een schitterend uitzicht over de landerijen. Je beschikt over een eigen oprit met voldoende parkeergelegenheid voor meerdere voertuigen. Je woont hier aan de doorgaande weg richting Leeuwarden, waardoor je binnen korte tijd in het centrum van de stad bevindt. De goede basis is gelegd, maak jij het helemaal je eigen?
– in 2025 gemoderniseerde twee-onder-een-kapwoning
– slaapkamer op de begane grond, 3 slaapkamers in totaal
– moderne badkamer
– uitzicht over de landerijen aan de achterzijde
– eigen oprit met voldoende parkeergelegenheid voor meerdere voertuigen
Jelsum is een sfeervol Fries terpdorp met een rijke geschiedenis en telt circa 350 inwoners. Voor dagelijkse boodschappen en voorzieningen kun je terecht in de omliggende dorpen, maar ook Leeuwarden is in ongeveer 10 minuten fietsen te bereiken. Daarnaast ligt er rondom het dorp prachtige natuur die uitnodigt tot wandelen en fietsen.
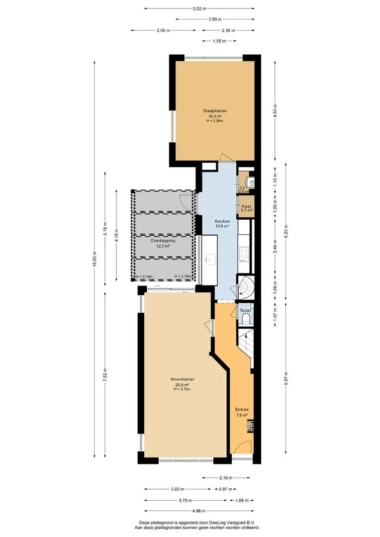
Indeling (zie plattegronden):
Begane grond
– entree/hal met vaste trapopgang en meterkast
– toiletruimte met wandcloser en fonteintje
– lichte doorzon woonkamer van circa 26 m2 met schuifpui naar de achtertuin
– moderne keuken
– keukenopstelling voorzien van inductiekookplaat, afzuigkap, vaatwasser, combimagnetron, koelkast
– kast met witgoedaansluiting
– slaapkamer 1 aan de achterzijde van de woning
Verdieping
– overloop met vlizotrap naar de vliering
– slaapkamer 2 van circa 10 m2 aan de voorzijde met dakkapel
– slaapkamer 3 van circa 9 m2 aan de achterzijde
– badkamer met inloopdouche, wastafelmeubel en dakkapel
– apart 2e toilet
Zolder:
– bergzolder
Buiten:
– aan de woning gebouwde overkapping
– 16 meter lange tuin aan de zijkant van de woning, gelegen op het zuiden, dient nog te worden aangelegd
Algemeen
– energielabel C
– elektra in 2025 vernieuwd, 8 groepen en kookgroep
– aangesloten op beerput, geplaatst rond 2015
– niet-zelfbewoningsclausule van toepassing
Aan deze presentatie kunnen geen rechten worden ontleend.
Toelichtingsclausule BBMI. De meetinstructie is gebaseerd op de BBMI. De meetinstructie is bedoeld om een meer eenduidige manier van meten toe te passen voor het geven van een indicatie van de gebruiksoppervlakte. De meetinstructie sluit verschillen in meetuitkomsten niet volledig uit, door bijvoorbeeld interpretatieverschillen, afrondingen of beperkingen bij het uitvoeren van de meting.










































