Omschrijving
Object beschikbaar: Aalsumerweg 5 in Dokkum
Te huur! Bent u op zoek naar een representatieve kantoorruimte in Dokkum? Dan is dit kantoorpand wellicht iets voor u!
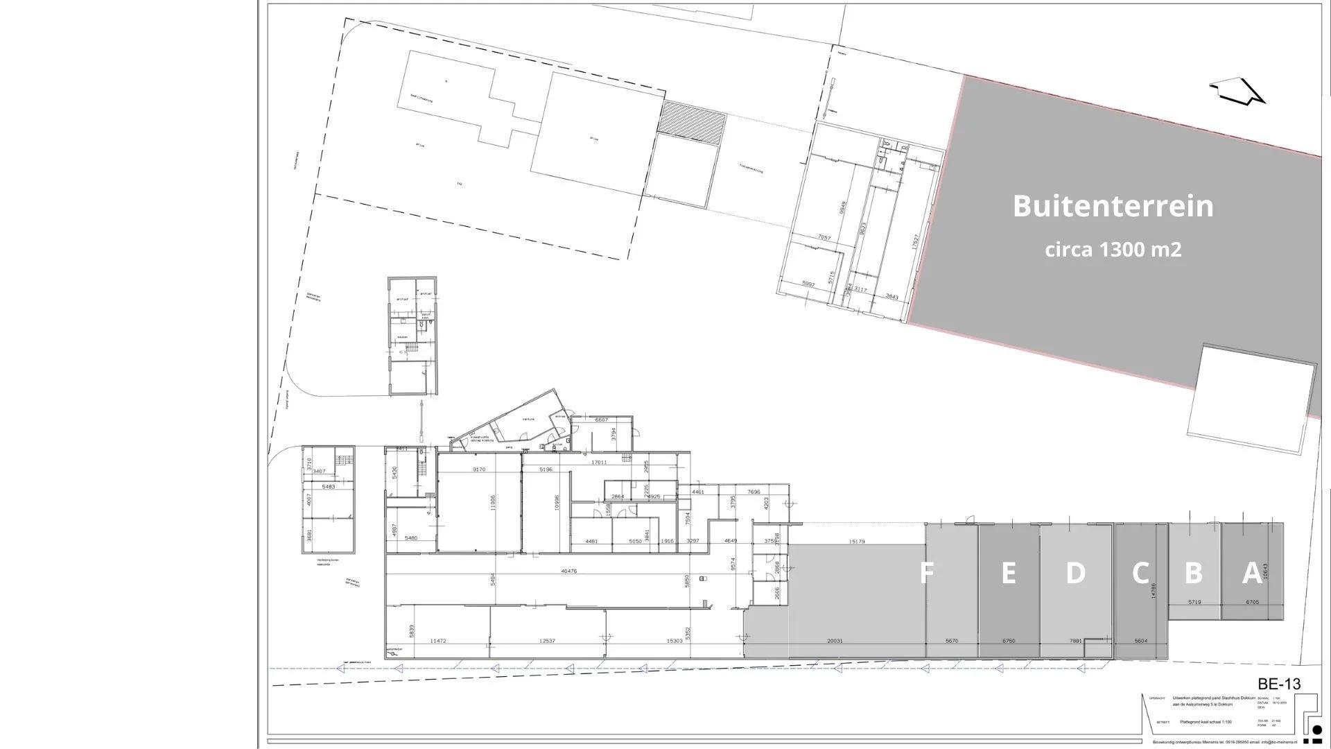
Op een mooie locatie aan de Aalsumerweg 5 in Dokkum is gelegen dit kantoorpand met 3 lichte kantoorruimtes en een keuken. De kantoorruimte beslaat ca. XXXX m2.
– in totaal 3 kantoorruimtes
– toiletvoorziening
– keuken
– energielabel X
– systeemplafond met verlichtingsarmaturen
– raambekleding
– voldoende parkeergelegenheid op eigen terrein
Indeling:
Begane grond:
– entree/hal met trapopgang naar de eerste verdieping
– dichte keukenruimte met simpele keukenopstelling
– toiletruimte met hangend toilet en urinoir
– kantoorruimte van circa X m2
Verdieping:
– overloop
– kantoor 1 van circa X m2
– kantoor 2 van circa X m2 voorzien van inbouwkasten en ingebouwde kluis
Algemeen:
– verwarming middels ??
– meterkast voorzien van X automaten en X aardlekschakelaars
Huurtermijn:
Maandelijks opzegbaar (???)
Huurprijs:
Zekerheidstelling:
Bij ondertekening van de huurovereenkomst wordt een waarborgsom
ter grootte van 2 maanden huur te vermeerderen met BTW gestort op rekening van verhuurder.
Voorbehoud:
goedkeuring verhuurder/eigenaar.
Huurbetaling:
De huurbetalingsverplichting dient per maand vooruit te zijn voldaan.
BTW:
Er is sprake van een verhuur met btw/omzetbelasting
Bestemming
Het perceel heeft de bestemming bedrijven tot categorie 2 met als extra aanduiding ‘specifieke vorm van een slachterij. Als gebruiker bent u zelf verantwoordelijk om navraag te doen naar het actuele bestemmingsplan bij de gemeente. Aan deze omschrijving kunnen geen rechten worden ontleend.
Huurovereenkomst volgens ROZ-model.
Indexering:
Jaarlijks, voor het eerst één jaar na huuringangsdatum, op basis van de wijziging van het maandprijsindexcijfer volgens de consumentenprijsindex (CPI), reeks CPI – Alle huishoudens (2015=100), gepubliceerd door het Centraal Bureau voor de Statistiek (CBS). De huurprijs zal nimmer minder bedragen dan de huurprijs van het voorafgaande jaar.
De oppervlakten zijn gemeten door verhurend makelaar uit een kopie bouwtekening. Het opgegeven metrage is derhalve indicatief; er kunnen geen rechten aan worden ontleend noch kan er sprake zijn van enige verrekening achteraf. Deze informatie is door ons met de nodige zorgvuldigheid samengesteld. Onzerzijds wordt echter geen enkele aansprakelijkheid aanvaard voor enige onvolledigheid, onjuistheid of anderszins, dan wel de gevolgen daarvan. De bepalingen in de huurovereenkomst zullen doorslaggevend zijn en kunnen er geen rechten worden ontleend aan deze presentatie.






























